AVAILABLE

The Blythe

Annsborough Park, Concord, NC

M/I Homes-Charlotte

From $785,990

Square Feet

3,708 sq ft

Bedrooms

5

Bathrooms

4.0

Garage

3.00

Stories

2.0

A Home Plan Built for Space and Convenience
Meet the Blythe! With 3,708–4,069 square feet of open living space, this 2-story floorplan was designed to streamline your daily routines.
The Blythe
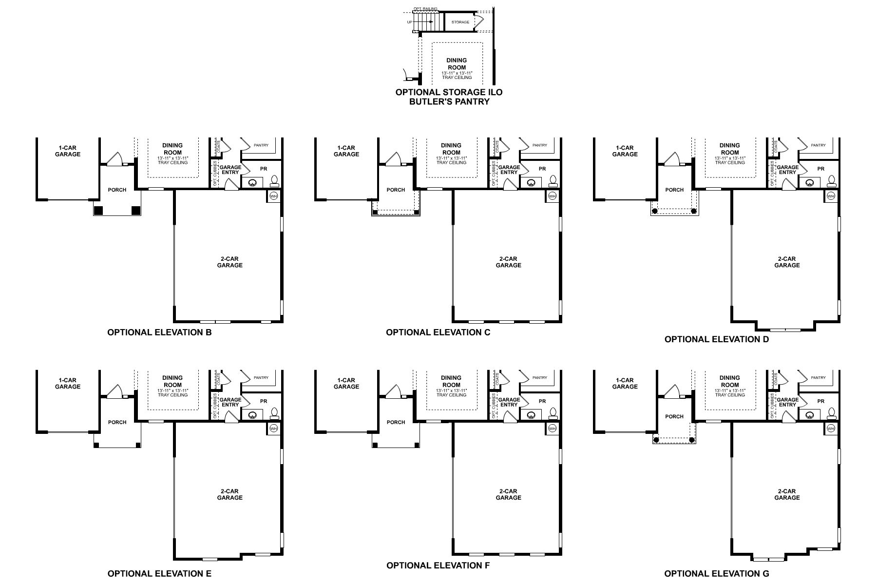
Premier Blythe C Premier Blythe II Floorplan Interior Premier Blythe Elevation A Interior Blythe First Floor Options Blythe Second Floor Premier Blythe Elevation B Interior Blythe Floor Print Premier Blythe Elevation D Kitchen Kitchen Blythe Second Floor Options Premier Blythe Elevation E Interior Blythe First Floor Premier Blythe Elevation F Premier Blythe Elevation G Interior Interior Interior Interior Interior
Interested in this plan?

Contact us to learn more about The Blythe and schedule a tour.

Contact Us

Available Homes Built on This Plan

615 Downshire Road NW
615 Downshire Road NW

$888,860

4,069 sqft

8353 Ashvale Street NW
8353 Ashvale Street NW

$900,495

4,069 sqft

488 Creevy Drive NW
488 Creevy Drive NW

$906,260

4,069 sqft

Home Finder Assistant
We're here to help!