AVAILABLE

Dickinson

Edgewood, Leander, TX

M/I Homes-Austin

From $685,990

Square Feet

3,687 sq ft

Bedrooms

4

Bathrooms

2.0

Garage

2.00

Stories

2.0

Why You'll Love It
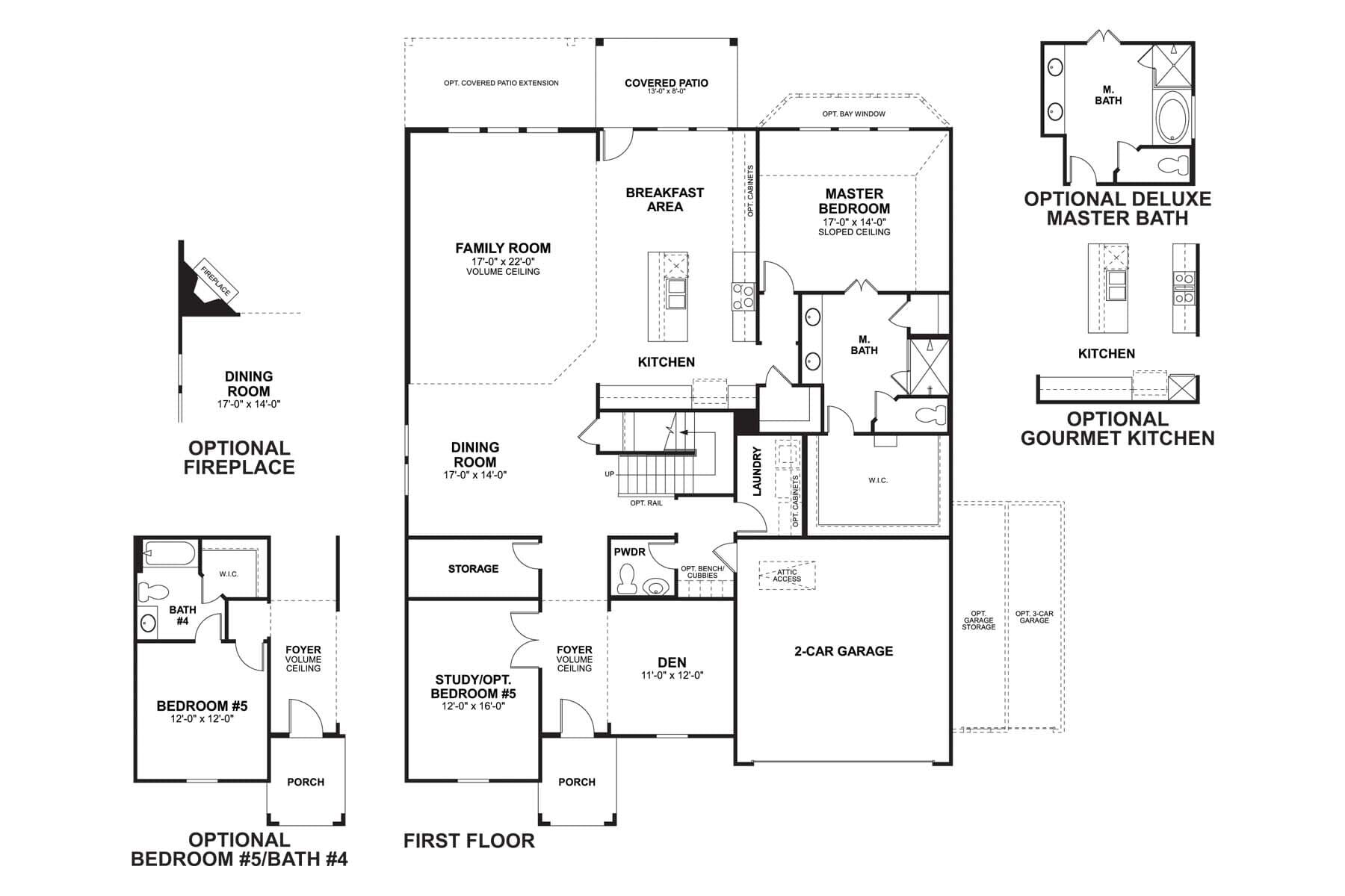
Picture yourself in the two-story Dickinson floorplan, part of the newest series of M/I Homes. This Classic series floorplan features 4-5 bedrooms, 2.5-4 bathrooms, an optional 3-car garage, and 3,674-4,086 square feet of functional living space.
Dickinson
Interior 5108 Dickinson First Floor Dickinson Elevation B Dickinson Elevation C Interior 5108 Dickinson Second Floor Dickinson Elevation D Interior Exterior Interior Exterior Interior Interior Kitchen Interior Interior Interior
Interested in this plan?

Contact us to learn more about Dickinson and schedule a tour.

Contact Us

Available Homes Built on This Plan

3929 Waxahachie Road
3929 Waxahachie Road

$840,990

4,132 sqft

4008 Waxahachie Road
4008 Waxahachie Road

$843,990

4,132 sqft

Home Finder Assistant
We're here to help!