AVAILABLE

Congress II

Heritage, Dripping Springs, TX

M/I Homes-Austin

From $546,990

Square Feet

3,006 sq ft

Bedrooms

4

Bathrooms

3.0

Garage

2.00

Stories

2.0

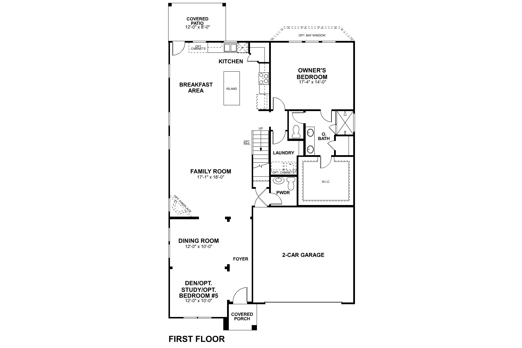
2-Story Home Built With Functionality
Our stunning Congress II Floorplan is a 2-story home that boasts 3,006-3,051 square feet of functional living space. Ideal for families of all sizes, this floorplan features an impressive 4 to 5 bedrooms, giving you the flexibility to customize the home according to your unique lifestyle needs. The spacious downstairs area offers an optional bedroom or study conversion to suit your personal preferences. With 3 to 4 bathrooms and a large, inviting, game room, this floor plan provides everything you need for both relaxation and entertainment.
Congress II
Congress II Elevation A Congress II First Floor Family Room Congress II Elevation C Congress II First Floor Options Family Room Front Exterior Congress II Second Floor Kitchen Exterior Kitchen Bedroom Owner's Bathroom Interior Interior
Interested in this plan?

Contact us to learn more about Congress II and schedule a tour.

Contact Us
Home Finder Assistant
We're here to help!