AVAILABLE

Henderson

Settler's Glen, New Fairview, TX

Sandlin Homes

From $672,900

Square Feet

3,041 sq ft

Bedrooms

3

Bathrooms

3.0

Garage

2.00

Stories

1.0

About This Plan
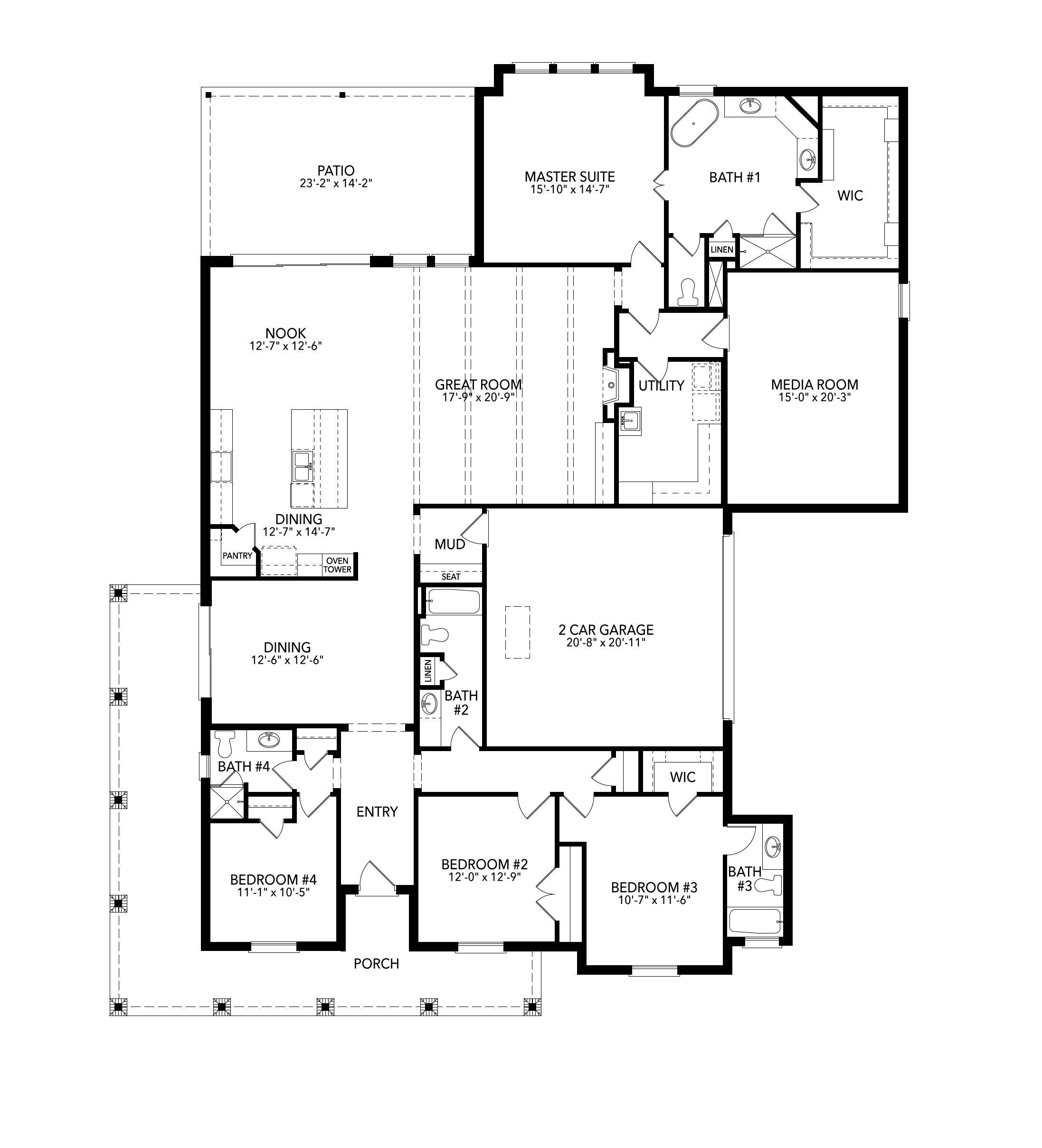
The Henderson is a quaint floor plan with a wrap around front porch, 3 bedrooms, 3.5 bathrooms, formal dining and living rooms, mud room with bench and storage, large utility room, and a covered patio. Upgrade this home with a study or bedroom 4 with full bathroom ILO living, media room with refreshment center, bedroom 5 with full bathroom, sliding glass patio door, great room beamed ceilings or built ins, bay windows at the owner's bedroom, double sink at bath 2, oven tower, second pantry, large island, outdoor grill with sink, outdoor fireplace, utility room sink with cabinet, utility room built ins, sliding glass doors at dining room to porch, or a 3rd bay garage.
Henderson
Henderson Henderson Henderson Henderson Henderson Henderson Henderson Henderson Henderson
Interested in this plan?

Contact us to learn more about Henderson and schedule a tour.

Contact Us

Available Homes Built on This Plan

132 Evanston Court
132 Evanston Court

$749,900

3,392 sqft

Home Finder Assistant
We're here to help!