AVAILABLE

Monte Carlo

The Retreat, Cleburne, TX

Sandlin Homes

From $665,900

Square Feet

3,892 sq ft

Bedrooms

4

Bathrooms

3.0

Garage

2.00

Stories

2.0

About This Plan
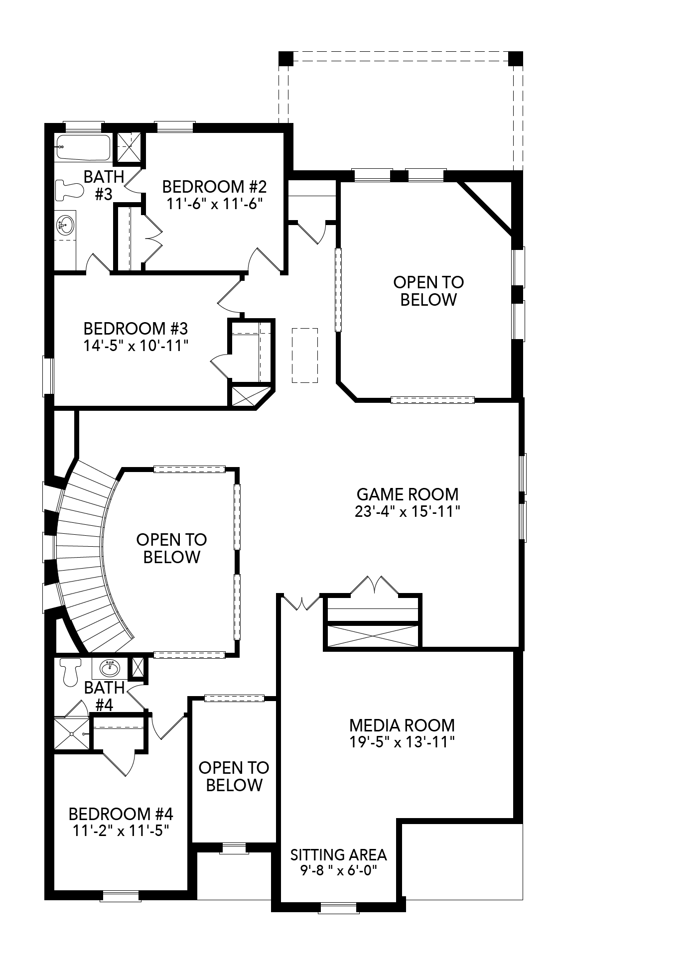
Our popular Monte Carlo plan with a curved staircase comes standard with 4 bedrooms, 3.5 bathrooms, a 2-car garage, dining room and living room, media and game room upstairs, freestanding tub in the main bathroom, and 10' ceilings on the first floor and 9' ceilings on the second floor. Upgrade this home with optional living room to study, built-ins at the study, living room to bedroom 5 and full bath, utility sink and cabinet, bay windows in main bedroom, wall oven tower in kitchen, alternative kitchen layout, sliding patio door at great room, outdoor grill, double sink at bath 3, game room closet to floating bar, refreshment center with sink in game room, Juliet balcony at entry and/or game room, covered balcony over patio, and a 3-car garage or 5' garage extension.
Monte Carlo
Monte Carlo Monte Carlo Monte Carlo Monte Carlo Monte Carlo Monte Carlo Monte Carlo Monte Carlo Monte Carlo Monte Carlo Monte Carlo Monte Carlo Monte Carlo Monte Carlo Monte Carlo Monte Carlo Monte Carlo Monte Carlo Monte Carlo Monte Carlo Monte Carlo Monte Carlo Monte Carlo Monte Carlo Monte Carlo Monte Carlo Monte Carlo Monte Carlo Monte Carlo Monte Carlo Monte Carlo Monte Carlo Monte Carlo Monte Carlo Monte Carlo Monte Carlo Monte Carlo Monte Carlo Monte Carlo Monte Carlo Monte Carlo Monte Carlo Monte Carlo Monte Carlo Monte Carlo Monte Carlo Monte Carlo Monte Carlo Monte Carlo Monte Carlo Monte Carlo Monte Carlo Monte Carlo Monte Carlo Monte Carlo Monte Carlo Monte Carlo Monte Carlo Monte Carlo Monte Carlo Monte Carlo Monte Carlo Monte Carlo Monte Carlo Monte Carlo Monte Carlo Monte Carlo Monte Carlo Monte Carlo Monte Carlo Monte Carlo Monte Carlo Monte Carlo Monte Carlo Monte Carlo Monte Carlo Monte Carlo Monte Carlo Monte Carlo Monte Carlo Monte Carlo Monte Carlo Monte Carlo Monte Carlo Monte Carlo Monte Carlo Monte Carlo Monte Carlo Monte Carlo Monte Carlo Monte Carlo Monte Carlo Monte Carlo Monte Carlo Monte Carlo Monte Carlo Monte Carlo Monte Carlo Monte Carlo Monte Carlo
Interested in this plan?

Contact us to learn more about Monte Carlo and schedule a tour.

Contact Us

Plan Features & Amenities

  • 1
Home Finder Assistant
We're here to help!