AVAILABLE

Wentworth

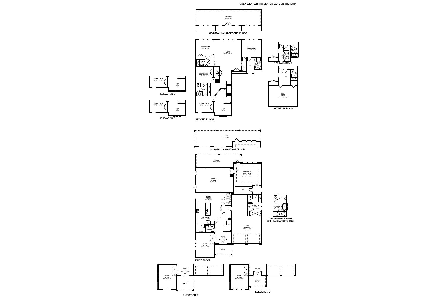
Center Lake on the Park, St. Cloud, FL

M/I Homes-Orlando

From $697,990

Square Feet

4,340 sq ft

Bedrooms

5

Bathrooms

4.0

Garage

3.00

Stories

2.0

Why You'll Love It
This home is backed by our 10-Year Transferable Warranty and is Energy Star certified – lowering the cost of home ownership for you and your family month after month. Want to learn more about the Wentworth? Schedule your personal tour today!
Wentworth
Wentworth Elevation C Wentworth First Floor Wentworth Elevation A Wentworth Second Floor Wentworth Elevation B Wentworth First Floor Options Wentworth Second Floor Options Wentworth
Interested in this plan?

Contact us to learn more about Wentworth and schedule a tour.

Contact Us
Home Finder Assistant
We're here to help!