AVAILABLE

Sonoma

Bay Lake Farms, St. Cloud, FL

M/I Homes-Orlando

From $560,990

Square Feet

3,556 sq ft

Bedrooms

5

Bathrooms

3.0

Garage

2.00

Stories

2.0

Why You'll Love It
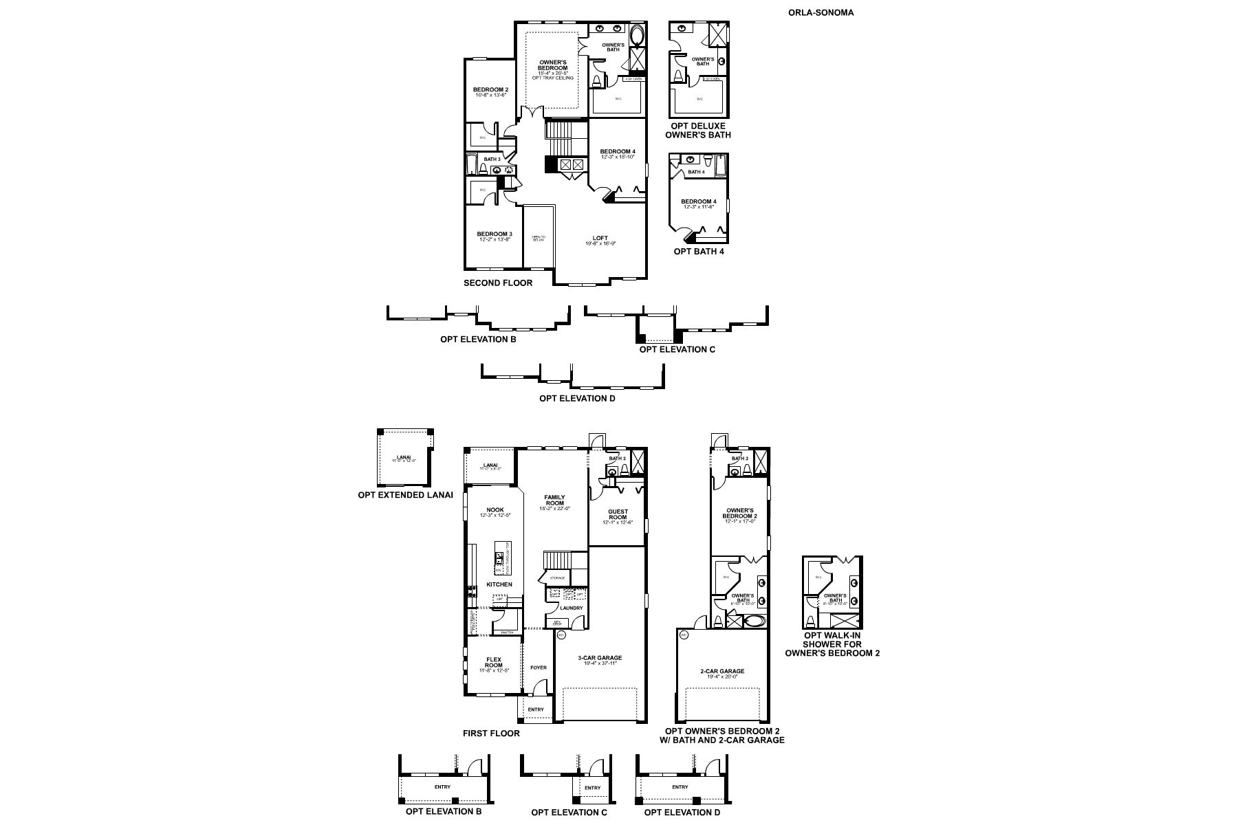
The Sonoma is one of the most popular home plans, and once you see it, you’ll understand why. This stunning two-story home offers 5 bedrooms, 3 bathrooms, a spacious loft, and a 3-car garage. Enjoy outdoor living with a covered lanai featuring 8-foot sliding glass doors.
Sonoma
Kitchen Sonoma First Floor Sonoma Elevation D1 Sonoma Elevation A1 Owners Suite Sonoma Second Floor Sonoma First Floor Options Sonoma Elevation Baylakefarm Sonoma Second Floor Options Sonoma Elevation C1 Front Exterior Sonoma The Sonoma The Sonoma Sonoma Interior Sonoma Interior Sonoma Interior Sonoma Interior Sonoma Interior Sonoma Exterior Front Exterior
Interested in this plan?

Contact us to learn more about Sonoma and schedule a tour.

Contact Us
Home Finder Assistant
We're here to help!