AVAILABLE

Bailey

Oneka Shores, Hugo, MN

M/I Homes-Minneapolis / St Paul

From $490,990

Square Feet

1,751 sq ft

Bedrooms

3

Bathrooms

2.0

Garage

3.00

Stories

2.0

Versatile and Spacious New Floorplan
Welcome to the impressive Bailey floorplan, which offers all that you need on one level! Learn more about all that it has to offer, then contact our team for a consultation to find out how you can build your new home here in the Twin Cities.
Bailey
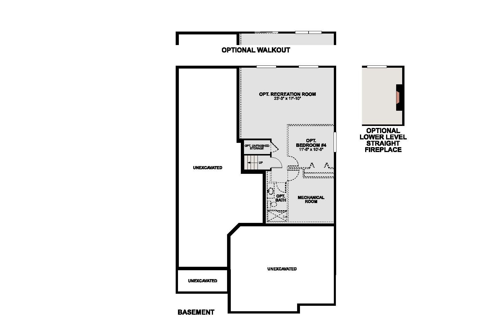
Bailey Elevation A Stone 3-Car Bailey Floorplan Basement Living Room Bailey Elevation B Stone 3-Car Bailey Floorplan First Floor Dining Area Bailey Elevation C Stone 3-Car Staircase Bailey Elevation D Stone 3-Car Kitchen Front Exterior Owner's Bedroom Owner's Bathroom Lower Level Recreation Room Bedroom Lower Level Recreation Room
Interested in this plan?

Contact us to learn more about Bailey and schedule a tour.

Contact Us

Available Homes Built on This Plan

15500 Goodview Ave N
15500 Goodview Ave N

$553,405

2,453 sqft

Home Finder Assistant
We're here to help!