AVAILABLE

Citadel

Jerome Village - Applewood, Plain City, OH

M/I Homes-Columbus

From $581,900

Square Feet

2,645 sq ft

Bedrooms

4

Bathrooms

2.0

Garage

2.00

Stories

2.0

Why You'll Love It
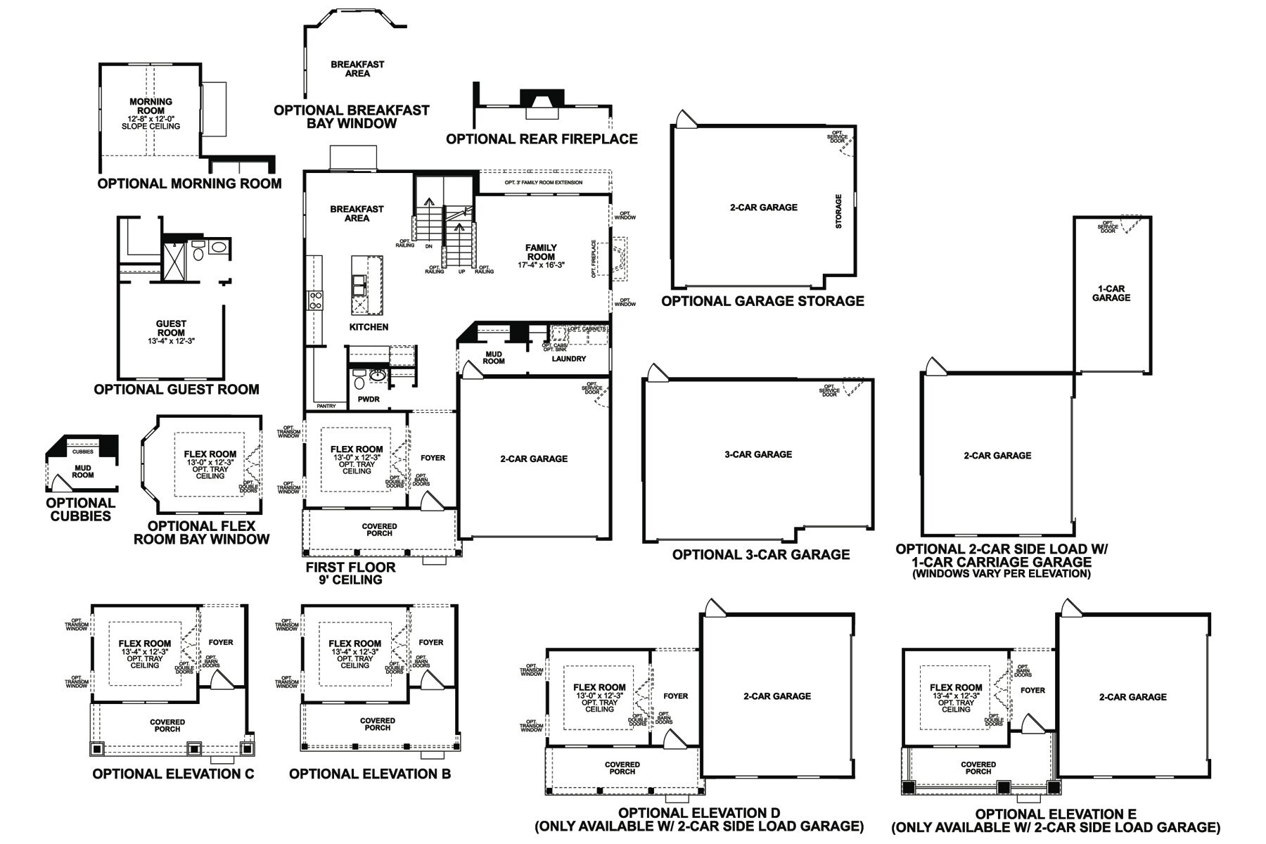
Welcome home to the Citadel, a top-selling plan offering 4-6 bedrooms. With three inspiring exteriors to numerous interior options, this plan can be personalized for you. Schedule a personalized tour today!
Citadel
Citadel Elevation B Day Citadel Floorplan Study Citadel Elevation D Citadel Floorplan Living Room Citadel Elevation E Interior Front Exterior Kitchen Breakfast Area Loft Owner's Bedroom Owner's Bathroom Owner's Bathroom
Interested in this plan?

Contact us to learn more about Citadel and schedule a tour.

Contact Us

Available Homes Built on This Plan

7306 Applewood Drive
7306 Applewood Drive

$684,169

3,105 sqft

Home Finder Assistant
We're here to help!