AVAILABLE

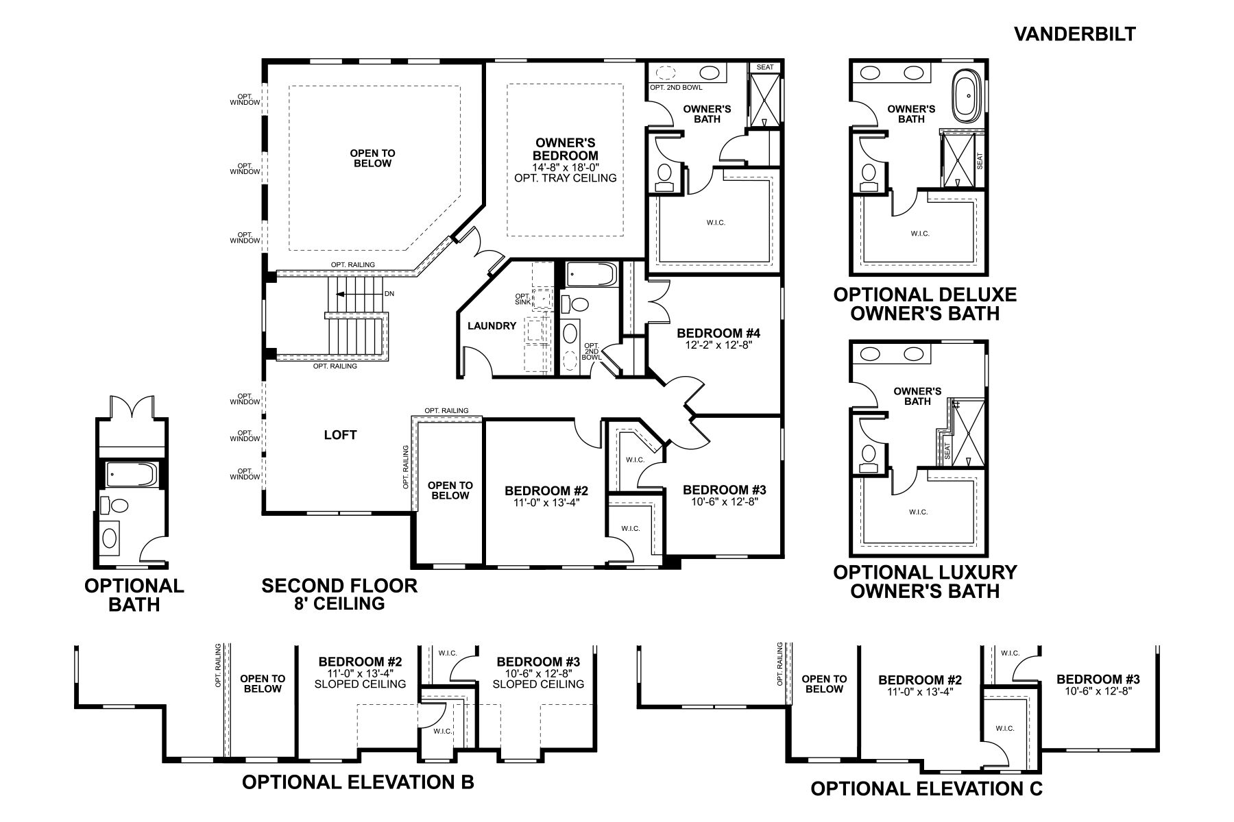
Vanderbilt

The Ridge at Glacier Pointe, Plain City, OH

M/I Homes-Columbus

From $689,900

Square Feet

3,248 sq ft

Bedrooms

4

Bathrooms

2.0

Garage

2.00

Stories

2.0

A Modern Home with Space for the Whole Family
Welcome to the Vanderbilt, a brand new 2 story floorplan by M/I Homes. This home comes with 4 bedrooms, a 2-story great room, a loft, and plenty of options to make this house your home. Starting with the exterior, the curb appeal is very important in any home; all of our elevations have charming curb appeal to match your style, like the traditional, farmhouse, and craftsman. Walk inside from the covered front porch and notice the elongated foyer with the ceiling soaring to the second floor. Off to the side is a flex space that makes for a perfect formal dining room, home office, and homework station.
Vanderbilt
Vanderbilt Elevation C Vanderbilt Floorplan Dining Room Elevation A Vanderbilt Floorplan Kitchen Vanderbilt Elevation B Dining Area Front Exterior Living Room Flex Room Dining Area Living Room Loft Owner's Bathroom
Interested in this plan?

Contact us to learn more about Vanderbilt and schedule a tour.

Contact Us

Available Homes Built on This Plan

9613 Riley Road
9613 Riley Road

$884,982

3,693 sqft

Home Finder Assistant
We're here to help!