AVAILABLE

Lehigh

The Ridge at Glacier Pointe, Plain City, OH

M/I Homes-Columbus

From $684,900

Square Feet

3,240 sq ft

Bedrooms

4

Bathrooms

2.0

Garage

2.00

Stories

2.0

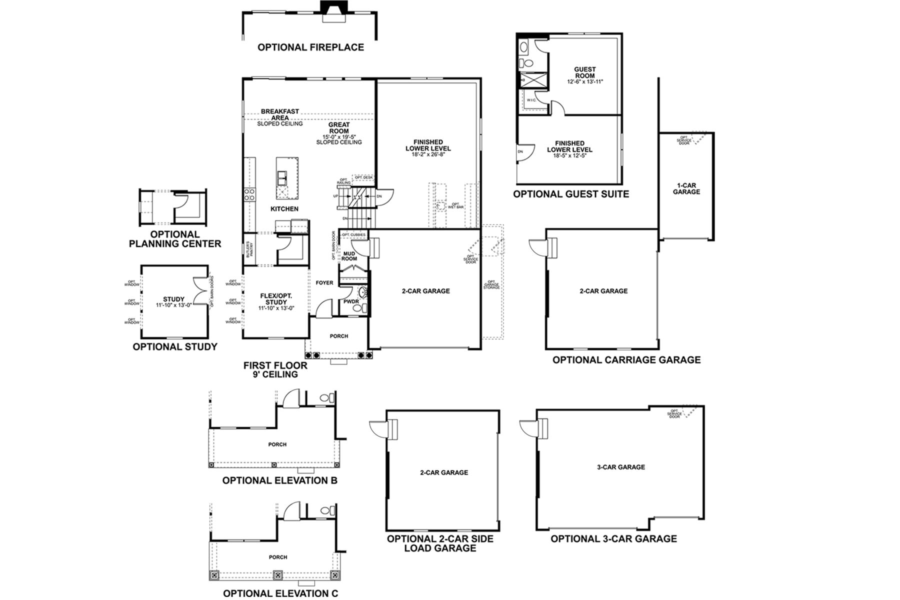
A Modern, Split-Level Home
Welcome to the brand new, split-level floorplan by M/I Homes. The Lehigh is a perfect place for a growing family to call home with a finished lower level, 4 bedrooms, and a loft. Fall in love with the space inside as well as the charming curb appeal outside. Choose from 3 options of exterior elevations: the traditional, farmhouse, and craftsman, to express your personal style. As you step onto the covered porch, admire the space allotted to sit with your family and enjoy the weather. Step through the front door notice the flex room off the foyer with the potential for a formal dining space or a home office.
Lehigh
Lehigh Elevation B Lehigh Floorplan Office Elevation A Lehigh Floorplan Kitchen Lehigh Elevation C Kitchen Front Exterior Kitchen Living Room Basement Owner's Bedroom Owner's Bathroom Loft
Interested in this plan?

Contact us to learn more about Lehigh and schedule a tour.

Contact Us

Available Homes Built on This Plan

8766 Glacier Pointe Drive
8766 Glacier Pointe Drive

$638,813

3,298 sqft

8712 Jenny Road
8712 Jenny Road

$822,822

3,359 sqft

Home Finder Assistant
We're here to help!