AVAILABLE

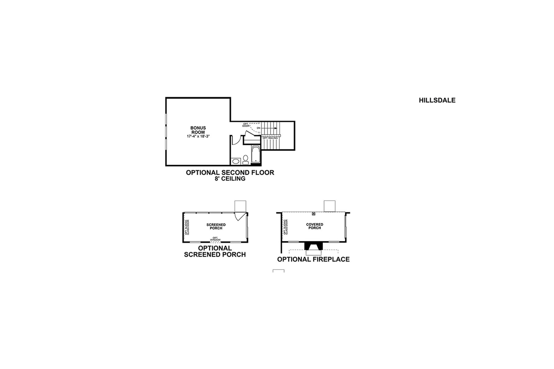
Hillsdale

The Ridge at Glacier Pointe, Plain City, OH

M/I Homes-Columbus

From $657,900

Square Feet

2,156 sq ft

Bedrooms

3

Bathrooms

2.0

Garage

2.00

Stories

1.0

A Versatile Ranch Floorplan
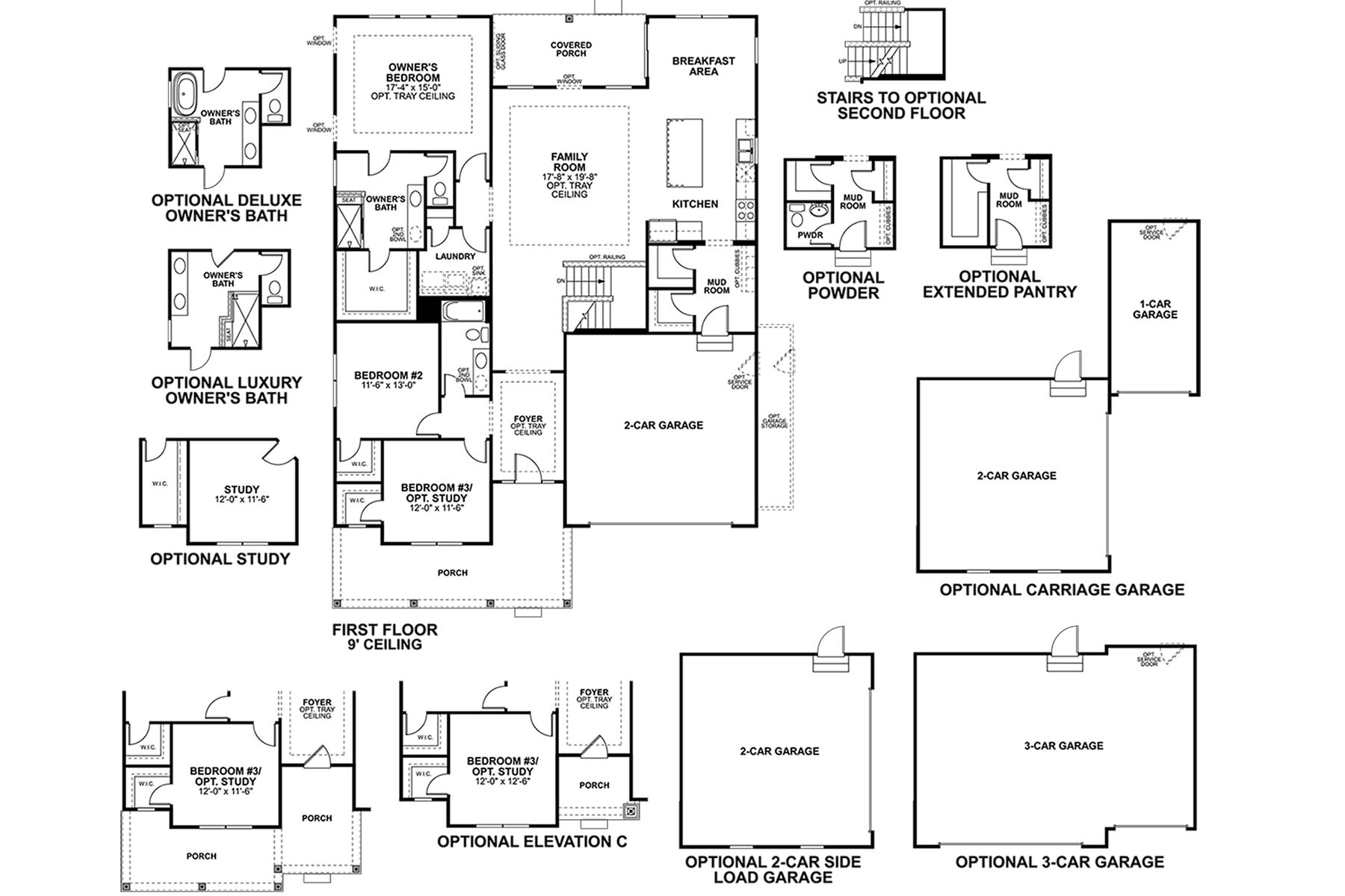
Welcome to the Hillsdale, a brand new floorplan by M/I Homes. This ranch home comes with 3 bedrooms, a covered back porch, and plenty of options to make this house your home. Starting with the exterior, choose from one of the charming elevations for curb appeal that matches your style, such as the traditional, farmhouse, and craftsman. For a full front porch, choose a traditional or farmhouse elevation. As you open the front door, notice the elongated foyer. Off to the foyer's side are two secondary bedrooms, each with a walk-in closet, and a full bathroom. Just beyond the foyer are stairs to the unfinished basement, add a 2nd-floor bonus room. This space comes equipped with a closet and full bathroom, making for an ideal guest space for visiting family. Or use this space as a home office or a play room; the options are endless.
Hillsdale
Hillsdale Elevation C Hillsdale Floorplan Bedroom Elevation A Hillsdale Floorplan Options Bathroom Hillsdale Elevation B Living Room Front Exterior Living Room Porch Kitchen Breakfast Area Owner's Bedroom Owner's Bathroom
Interested in this plan?

Contact us to learn more about Hillsdale and schedule a tour.

Contact Us
Home Finder Assistant
We're here to help!