AVAILABLE

Fordham II

Berlin Farm, Delaware, OH

M/I Homes-Columbus

From $603,900

Square Feet

3,008 sq ft

Bedrooms

4

Bathrooms

2.0

Garage

2.00

Stories

2.0

Why You'll Love It
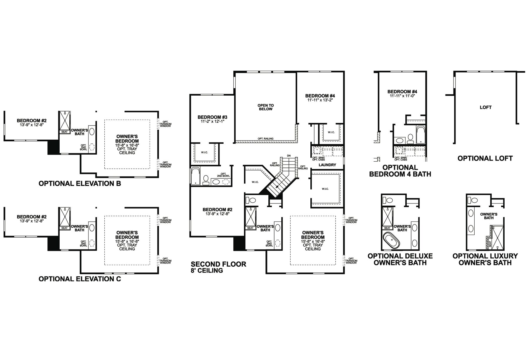
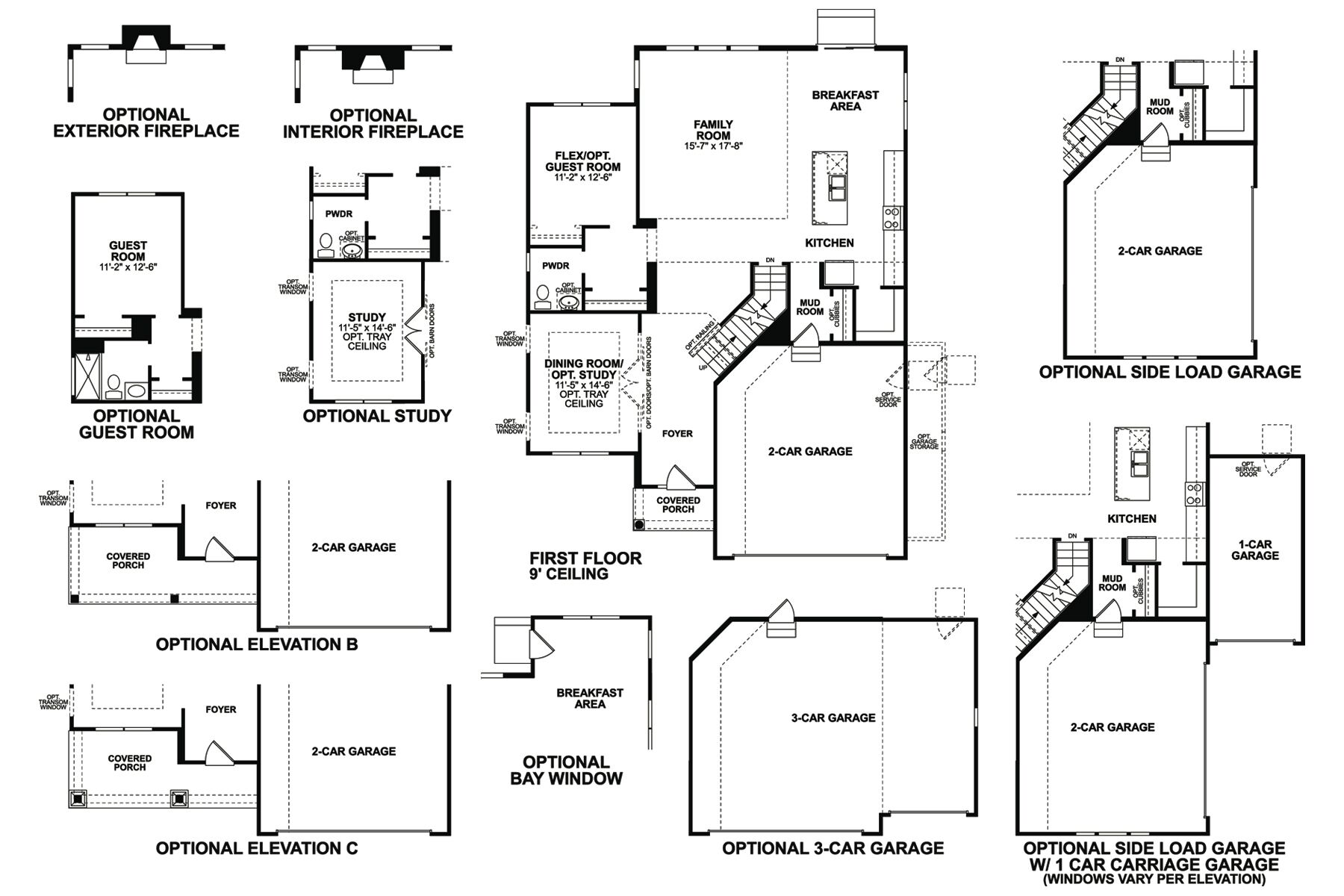
The Fordham II is one of our newly designed floorplans in our Signature Series of homes. This 2-story home offers [min_bedrooms–5 bedrooms, 2.5–4.5 baths, a second-floor laundry room and ranges from 3,008–3,375 square feet.
Fordham II
Foyer Fordham II Floorplan (40' Signature Series) Fordham II Elevation A Fordham II Elevation A with Brick Office Fordham II Floorplan (40' Signature Series) Fordham II Elevation B Main Living Area Great Room Fordham II Elevation B Fordham II Elevation C Kitchen Fordham II Elevation C Dining Room Front Exterior Great Room Owner's Bedroom Owner's Bathroom
Interested in this plan?

Contact us to learn more about Fordham II and schedule a tour.

Contact Us

Available Homes Built on This Plan

3435 Wittinghill Court
3435 Wittinghill Court

$709,128

3,080 sqft

Home Finder Assistant
We're here to help!