AVAILABLE

Emory

Berlin Farm, Delaware, OH

M/I Homes-Columbus

From $598,900

Square Feet

3,147 sq ft

Bedrooms

4

Bathrooms

2.0

Garage

2.00

Stories

2.0

Why You'll Love It
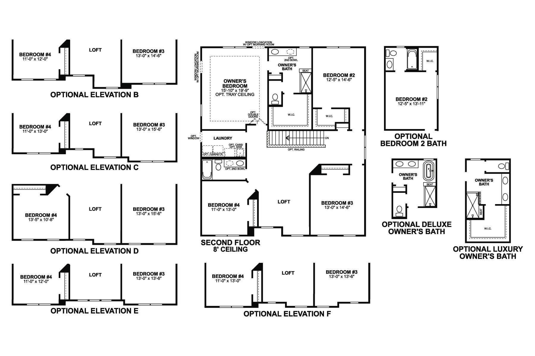
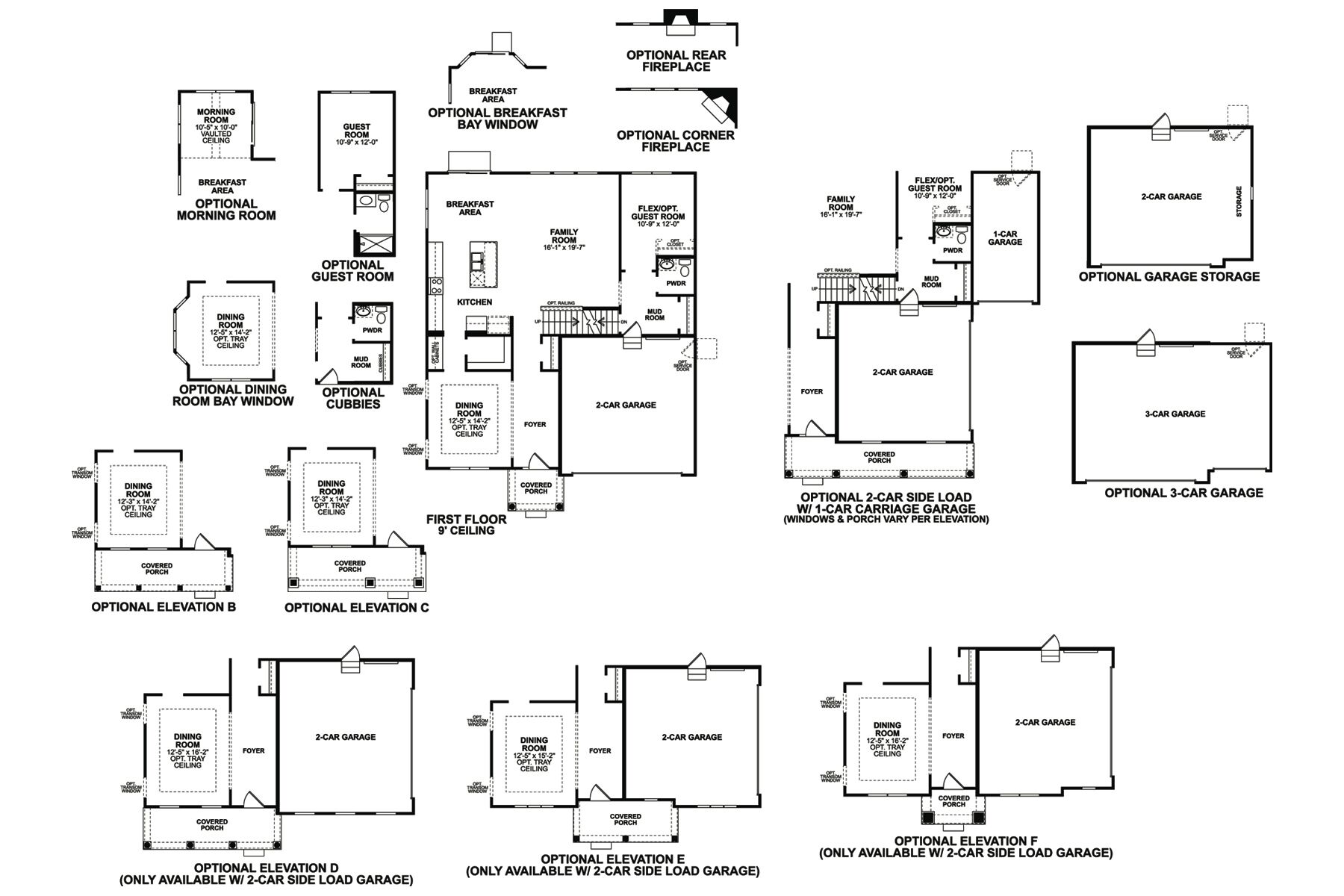
Welcome home to the Emory; a 2-story, 4-bedroom, 2-and-a-half bath design in our Signature Collection. You will be amazed at the numerous opportunities this plan offers to personalize your home, both on the inside and out. Choose from three beautiful exteriors: The traditional, farmhouse, and craftsman elevations all have terrific curb appeal.
Emory
Dining Room Emory Floorplan Emory Elevation B Emory Elevation B Dusk Kitchen Emory Floorplan Emory Elevation A Breakfast Area Emory Elevation A with Brick Living Room Emory Elevation C Day Living Room Front Exterior Study Loft Owner's Bedroom Owner's Bathroom
Interested in this plan?

Contact us to learn more about Emory and schedule a tour.

Contact Us

Available Homes Built on This Plan

3173 Brian Way
3173 Brian Way

$722,205

3,230 sqft

Home Finder Assistant
We're here to help!