AVAILABLE

Dartmouth

Berlin Farm, Delaware, OH

M/I Homes-Columbus

From $584,900

Square Feet

2,929 sq ft

Bedrooms

4

Bathrooms

2.0

Garage

2.00

Stories

2.0

Why You'll Love It
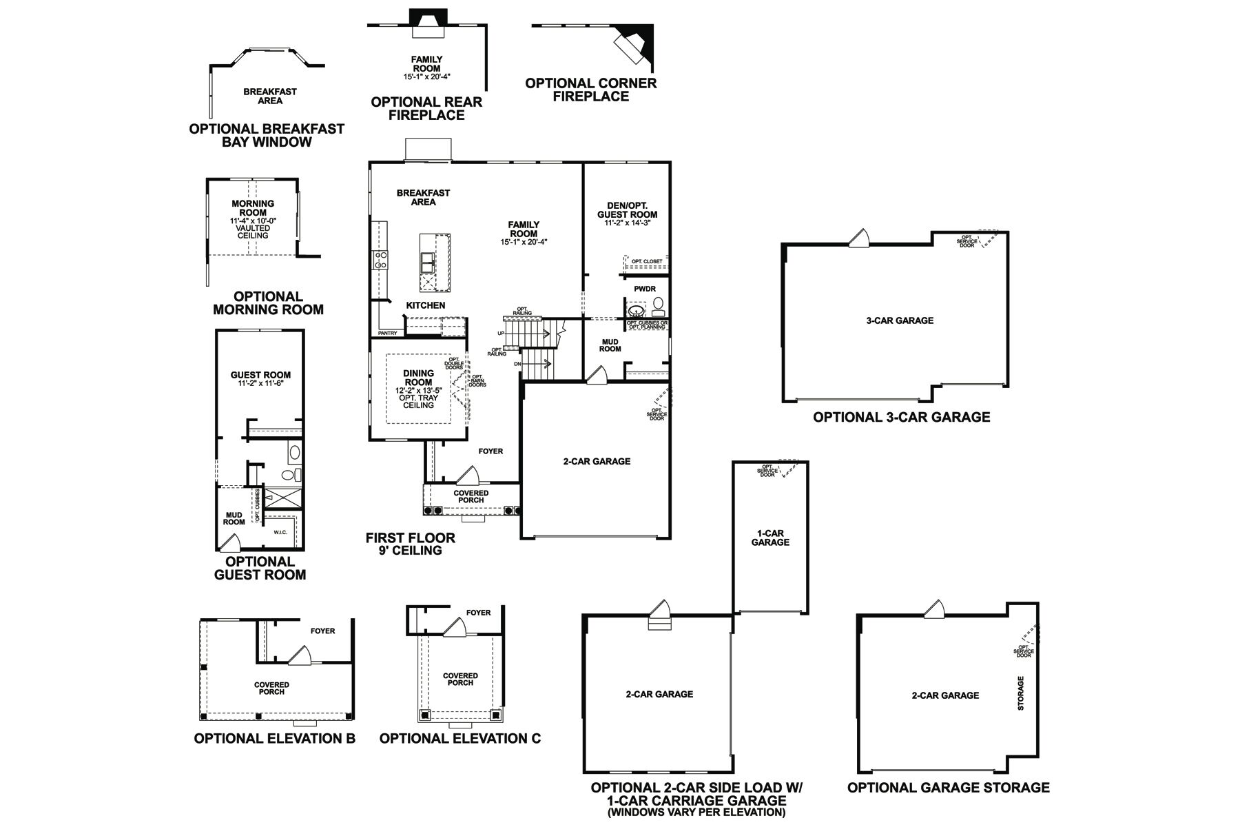
At nearly 3,000 square feet, the Dartmouth is one of our most popular floorplans. This 2-story home offers 4-5 bedrooms, 2-4 full bathrooms, a loft, and a 2- to 3-car garage. Take a tour today!
Dartmouth
Entryway Dartmouth Floorplan (40' Signature Series) Dartmouth Elevation C Dartmouth Elevation C Study Dartmouth Floorplan (40' Signature Series) Dartmouth Elevation A Living Room Living Room Dartmouth Elevation A with Brick Dartmouth Elevation B-Day Kitchen Dartmouth Elevation B-Dusk Dining Area Dartmouth Elevation B-Day Loft Front Exterior Owner's Bedroom Owner's Bathroom
Interested in this plan?

Contact us to learn more about Dartmouth and schedule a tour.

Contact Us

Available Homes Built on This Plan

3068 Patricia Ann Way
3068 Patricia Ann Way

$719,813

3,090 sqft

1509 Maple Heights Drive
1509 Maple Heights Drive

$729,858

3,082 sqft

3058 Brian Way
3058 Brian Way

$738,528

3,089 sqft

1794 Maple Heights Drive
1794 Maple Heights Drive

$826,571

3,089 sqft

Home Finder Assistant
We're here to help!