AVAILABLE

Quinn

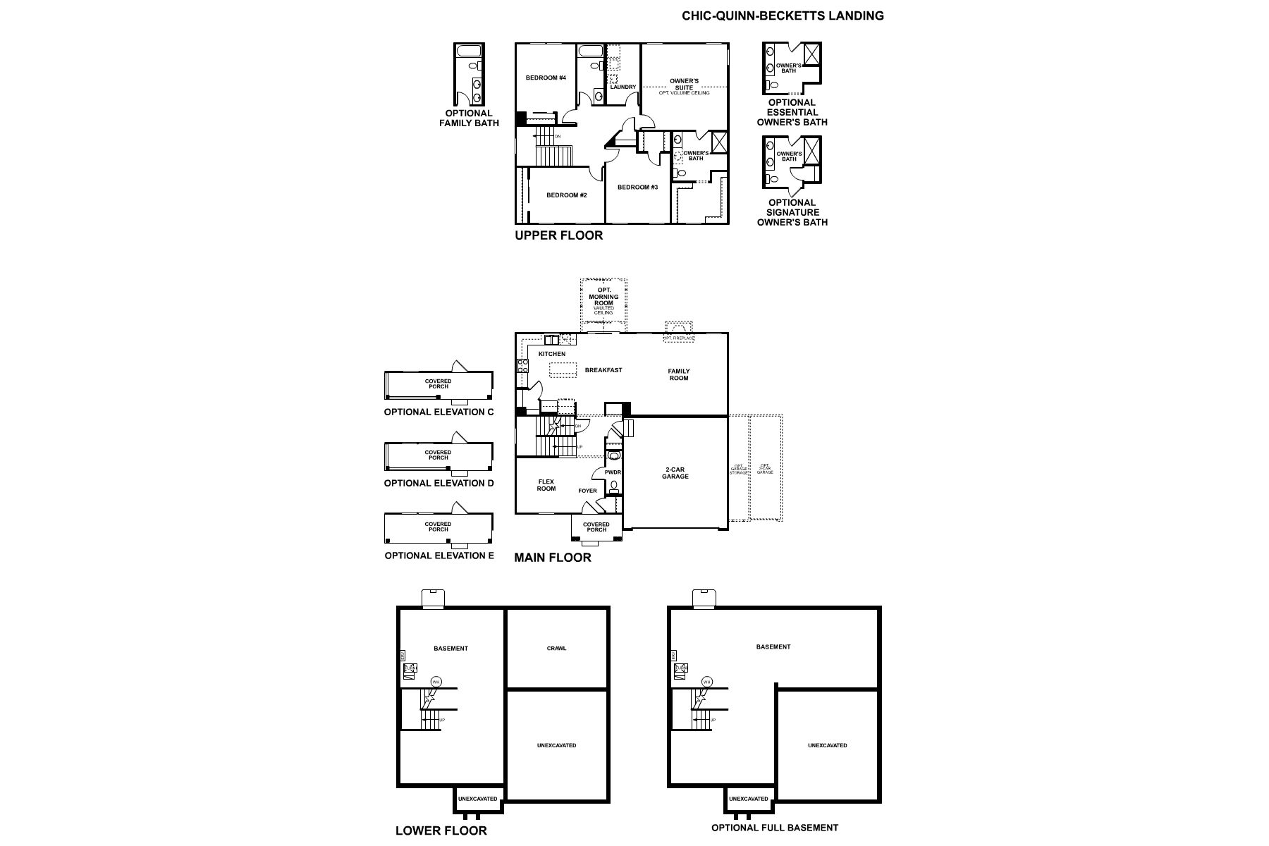
Becketts Landing, South Elgin, IL

M/I Homes-Chicago

From $495,990

Square Feet

2,289 sq ft

Bedrooms

4

Bathrooms

2.0

Garage

2.00

Stories

2.0

Why You'll Love It
Welcome to the Quinn at Beckett’s Landing! The Quinn is the largest floorplan of the Smart Series line of homes, and it’s easy to see why. The Quinn includes four bedrooms, two-and-a-half bathrooms, and a two- or three-car garage.
Quinn
Quinn Elevation D Entryway Lower Level Quinn Elevation B Lower Level Options Living Room Quinn Elevation C First Floor Dining Area First Floor Options Kitchen Quinn Elevation E Second Floor Morning Room Options Owners Bedroom Second Floor Options Owners Closet Owners Bathroom Bedroom 2 Bedroom 4
Interested in this plan?

Contact us to learn more about Quinn and schedule a tour.

Contact Us

Available Homes Built on This Plan

428 Collingwood Road
428 Collingwood Road

$579,990

2,289 sqft

Home Finder Assistant
We're here to help!