AVAILABLE

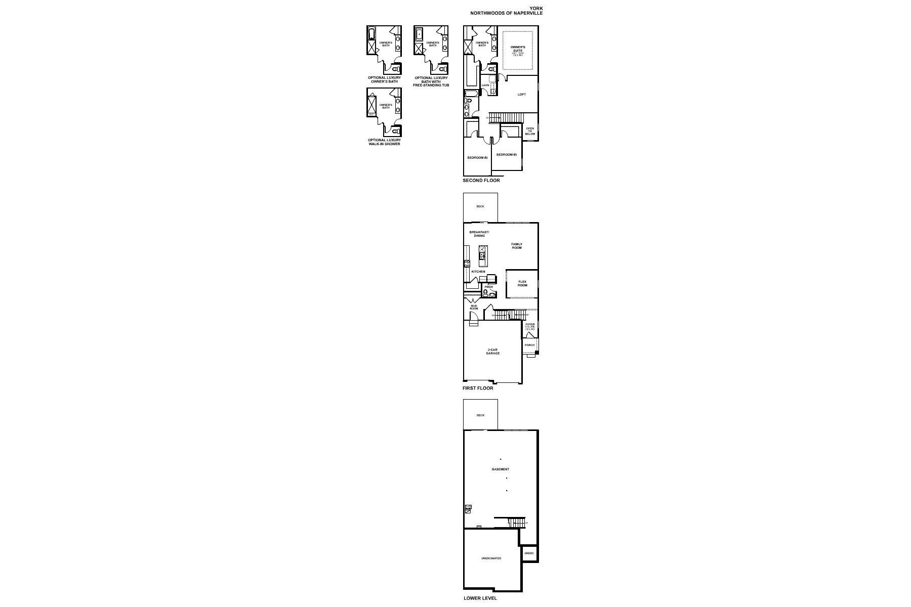
York

Northwoods of Naperville, Naperville, IL

M/I Homes-Chicago

From $809,990

Square Feet

2,436 sq ft

Bedrooms

3

Bathrooms

2.0

Garage

2.00

Stories

2.0

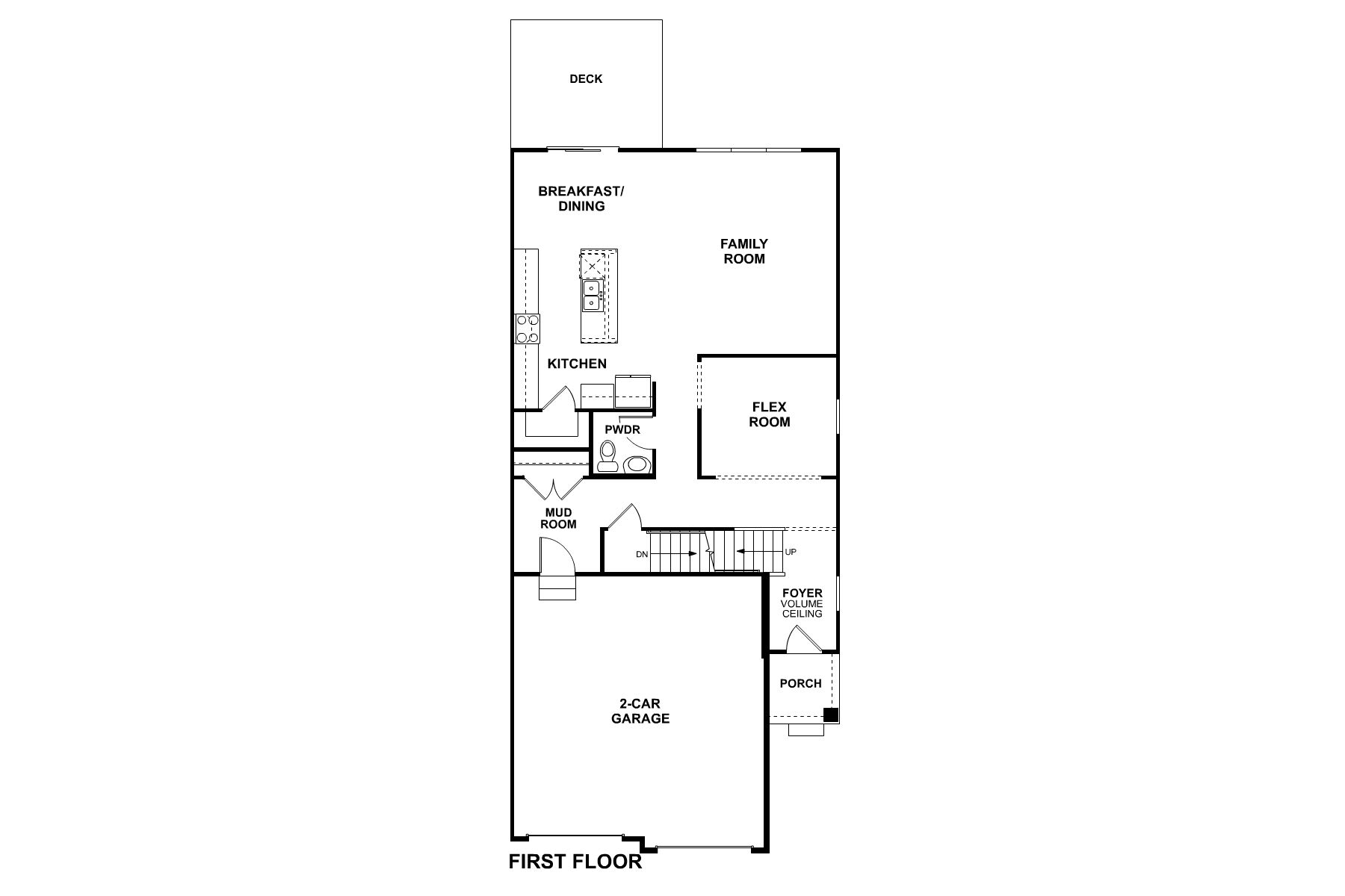
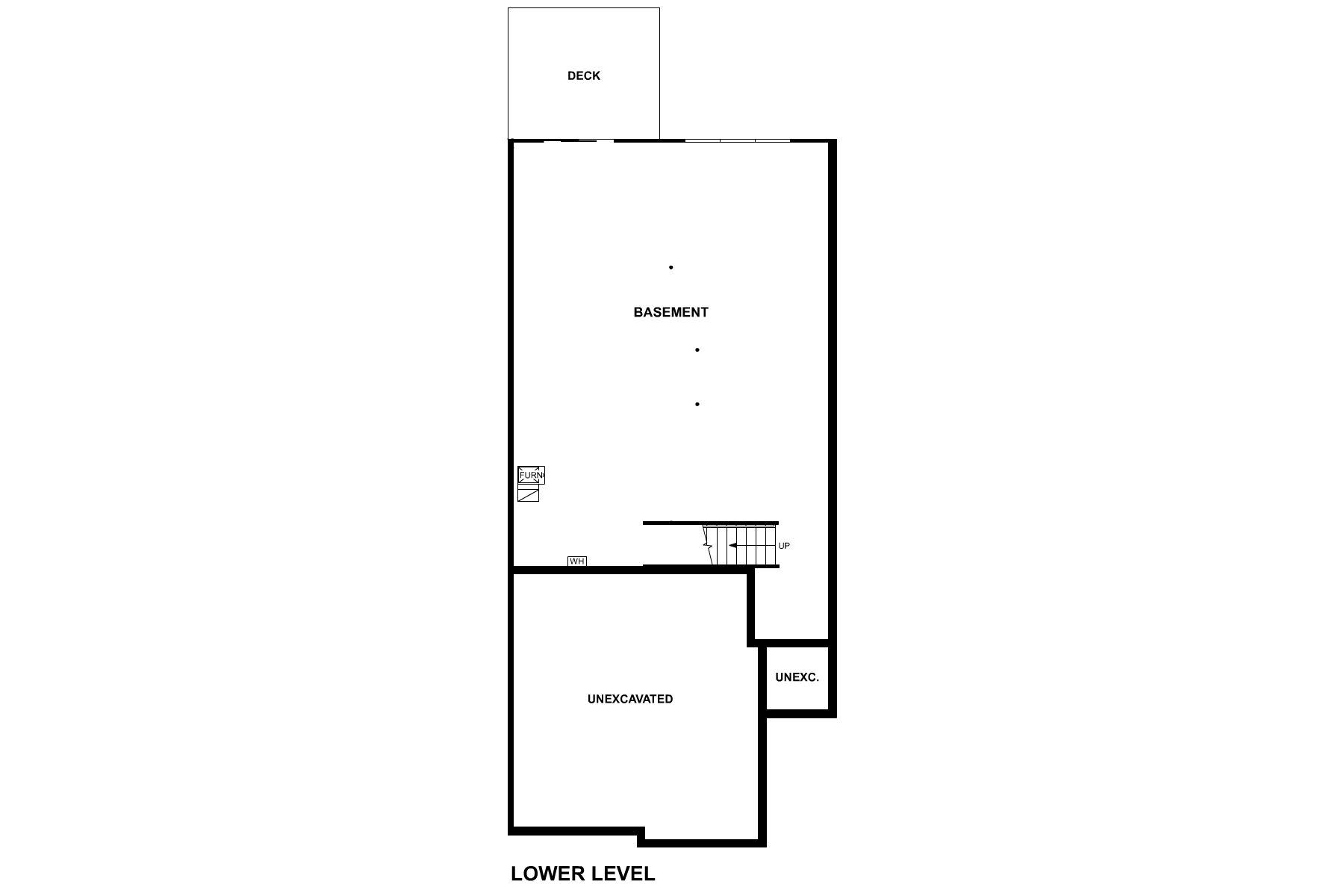
A Stunning 2-Story Home
The York is a refined, 2-story home that blends timeless style with luxurious livability. Spanning 2,436 square feet, this thoughtfully designed floorplan offers 3 bedrooms, 2.5 bathrooms, a 2-car garage, and a full basement, creating an exceptional layout for both entertaining and everyday comfort.
York
Front Exterior Flex Room York Second Floor Options York Second Floor Foyer York Kitchen Dining Area York Lower Level York First Floor Family Room Family Room Loft Loft Owner's Bedroom Owner's Bedroom Owner's Bathroom Owner's Bathroom
Interested in this plan?

Contact us to learn more about York and schedule a tour.

Contact Us

Available Homes Built on This Plan

2026 Iron Ridge Lane
2026 Iron Ridge Lane

$879,700

2,436 sqft

Home Finder Assistant
We're here to help!