AVAILABLE

Deacon

Somerset at Piper Glen, Oswego, IL

M/I Homes-Chicago

From $465,990

Square Feet

1,800 sq ft

Bedrooms

2

Bathrooms

2.0

Garage

2.00

Stories

1.0

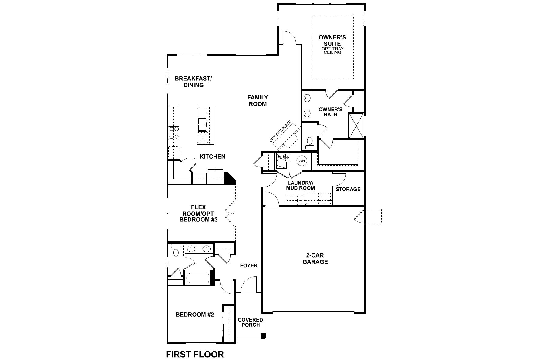
Ranch-Style Floorplan With a Grand Living Space
Welcome to your dream new home! The Deacon is a single-story floorplan with 2–3 bedrooms, 2 baths, an open-concept kitchen, and a 2-car garage.
Deacon
Kitchen Deacon - First Floor Options Deacon Elevation Artisan Deacon Elevation Craftsman Owners Bedroom Deacon - First Floor Owners Bathroom Deacon Elevation Traditional Deacon - Options Deacon Elevation Urban Farmhouse Bedroom 2 Laundry Room Owners Closet Kitchen Morning Room Family Room Family Room
Interested in this plan?

Contact us to learn more about Deacon and schedule a tour.

Contact Us
Home Finder Assistant
We're here to help!