AVAILABLE

Campbell

Lockley Park, Plainfield, IL

M/I Homes-Chicago

From $401,990

Square Feet

2,025 sq ft

Bedrooms

2

Bathrooms

2.0

Garage

2.00

Stories

2.0

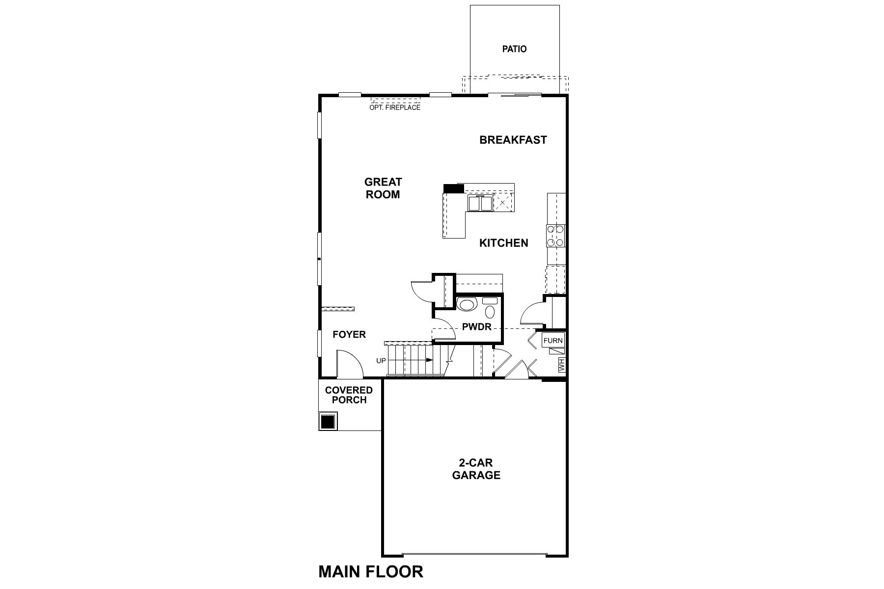
New Townhome Plan With Over 2,000 Sq. Ft.
Welcome to the Campbell, a spacious townhome floorplan available at Lockley Park in Plainfield!
Campbell
Kitchen First Floor Campbell Traditional Elevation Campbell Traditional Elevation Dining Area First Floor Options Second Floor Campbell Urban Farmhouse Elevation Living Room Second Floor Options Living Room Campbell Farmhouse Elevation Options Living Room Owners Bedroom Owners Bedroom Owners Bathroom Owners Bathroom Bedroom 3
Interested in this plan?

Contact us to learn more about Campbell and schedule a tour.

Contact Us

Available Homes Built on This Plan

14403 S Charlton Place
14403 S Charlton Place

$449,990

2,025 sqft

25520 W Stockwell Drive
25520 W Stockwell Drive

$573,395

2,025 sqft

Home Finder Assistant
We're here to help!