AVAILABLE

Essex

Leighton Pointe, Plainfield, IL

M/I Homes-Chicago

From $572,990

Square Feet

2,888 sq ft

Bedrooms

4

Bathrooms

2.0

Garage

3.00

Stories

2.0

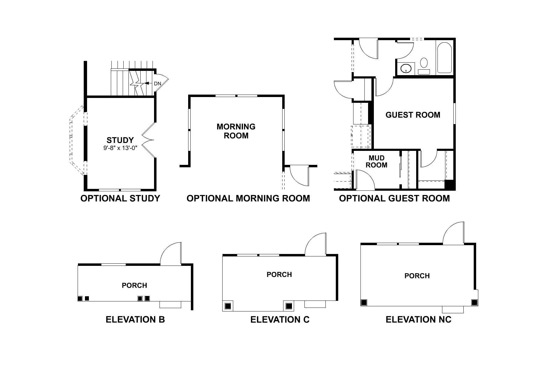
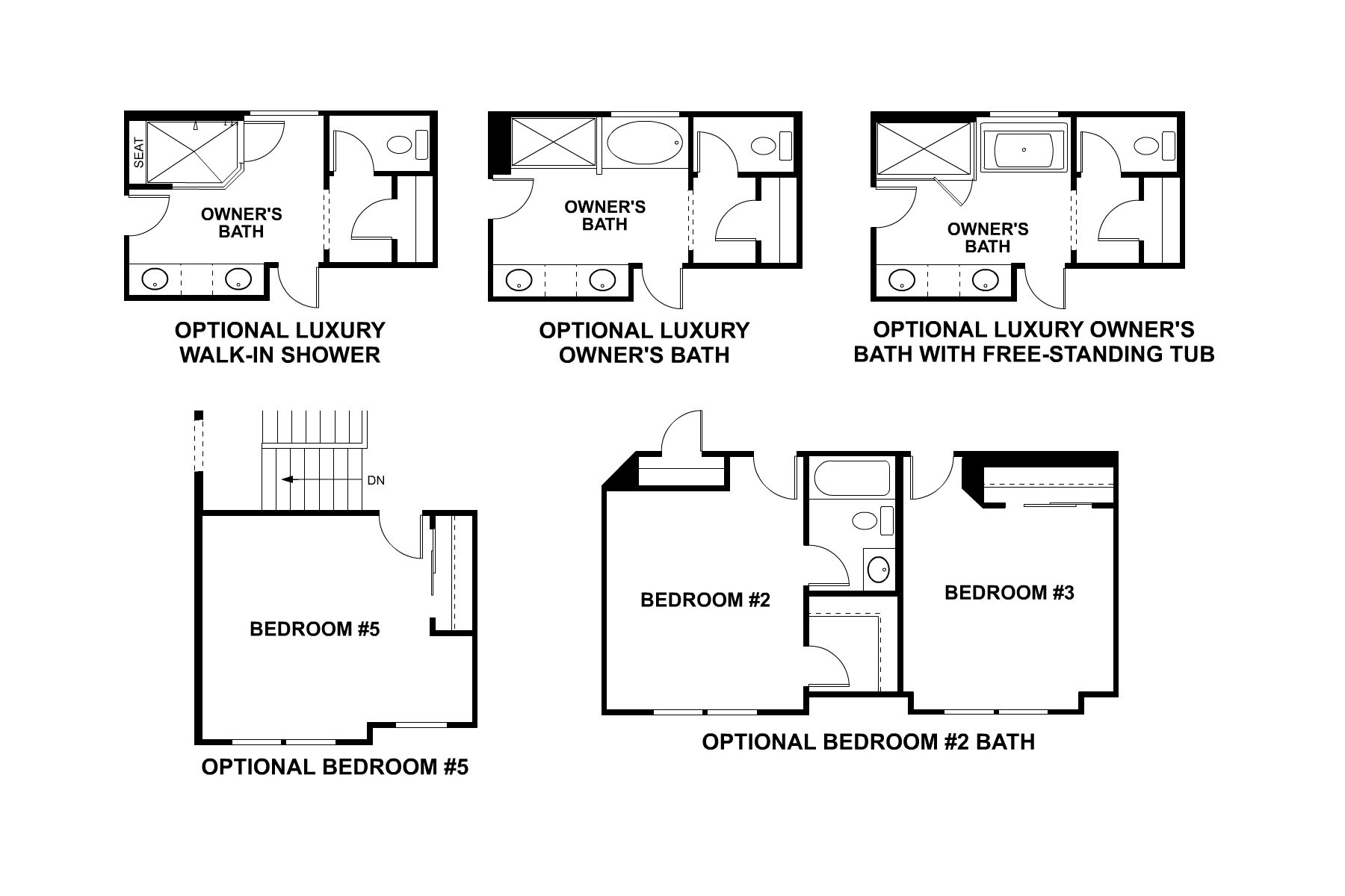
Flexible 4- to 6-Bedroom Home Plan Available at Leighton Pointe
The Essex, available at Leighton Pointe, is a thoughtfully designed floorplan offering over 3,000 square feet of functional living space.
Essex
Flex Room Essex - Options Essex Elevation Leightonpointe Essex Elevation A Kitchen Essex - Lower Level Essex - Second Floor Essex Elevation B Family Room Essex Elevation New England Cottage Den Essex - Second Floor Options Essex - First Floor Loft Essex - First Floor Options Owner's Bedroom Owner's Bathroom Bedroom #2 Bedroom #3 Bedroom #4
Interested in this plan?

Contact us to learn more about Essex and schedule a tour.

Contact Us

Available Homes Built on This Plan

26212 W Sablewood Circle
26212 W Sablewood Circle

$694,520

2,901 sqft

26341 W Sablewood Circle
26341 W Sablewood Circle

$916,735

2,901 sqft

Home Finder Assistant
We're here to help!