AVAILABLE

Fairchild

Riverstone, Plainfield, IL

M/I Homes-Chicago

From $614,990

Square Feet

2,982 sq ft

Bedrooms

4

Bathrooms

2.0

Garage

3.00

Stories

2.0

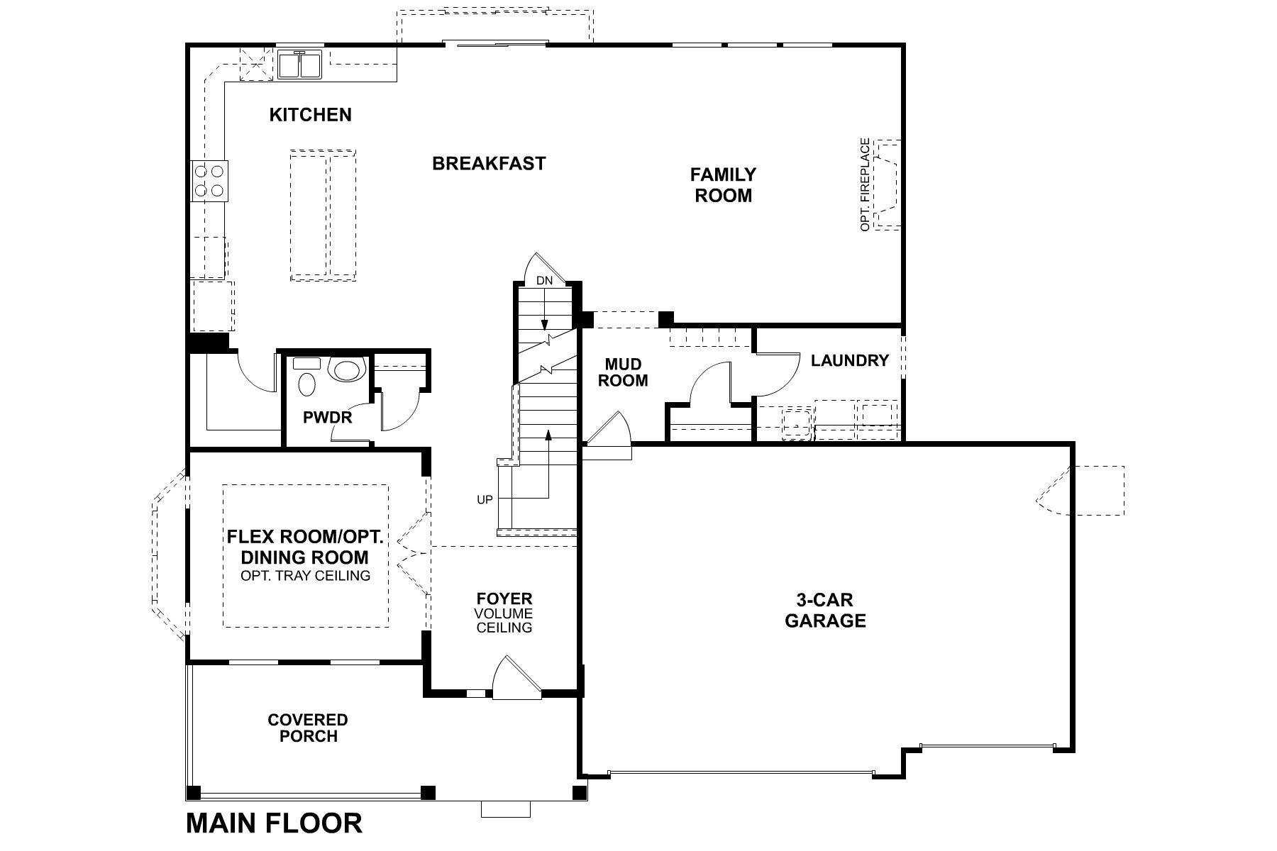
Spacious New 4- or 5-Bedroom Plan Available at Riverstone in Plainfield
The brand-new Fairchild plan, offering more than 3,000 square feet of living space, is designed with functionality in mind. It features 4 bedrooms, a bonus room, 2.5 bathrooms, and a 3-car garage.
Fairchild
Fairchild Elevation Artisan Family Room Fairchild - Options Fairchild Elevation Classical Fairchild - Second Floor Options Owners Bedroom Fairchild Elevation Colonial Revival Kitchen Fairchild - Second Floor Fairchild - Lower Level Bedroom 4 Fairchild Elevation New England Cottage Fairchild - First Floor Options Owners Bathroom Fairchild Elevation Newport Shingle Fairchild - First Floor Fairchild Elevation Rustic Farmhouse Kitchen Fairchild Elevation Urban Farmhouse Kitchen Foyer Family Room Owners Bedroom
Interested in this plan?

Contact us to learn more about Fairchild and schedule a tour.

Contact Us

Available Homes Built on This Plan

23231 W Tenny Street
23231 W Tenny Street

$752,370

3,099 sqft

12740 S Kerry Lane
12740 S Kerry Lane

$935,560

3,036 sqft

Home Finder Assistant
We're here to help!