AVAILABLE

Hudson

Fieldstone, Huntley, IL

M/I Homes-Chicago

From $591,990

Square Feet

3,145 sq ft

Bedrooms

4

Bathrooms

2.0

Garage

3.00

Stories

2.0

Spacious Home Plan Available in Huntley, IL
If you're searching for a home with plenty of space and beautiful design touches, the Hudson plan available in our Fieldstone community may be the perfect fit! This home offers 5 bedrooms, 4.5 bathrooms, a 3-car garage, and 3,414–3,414 square feet.
Hudson
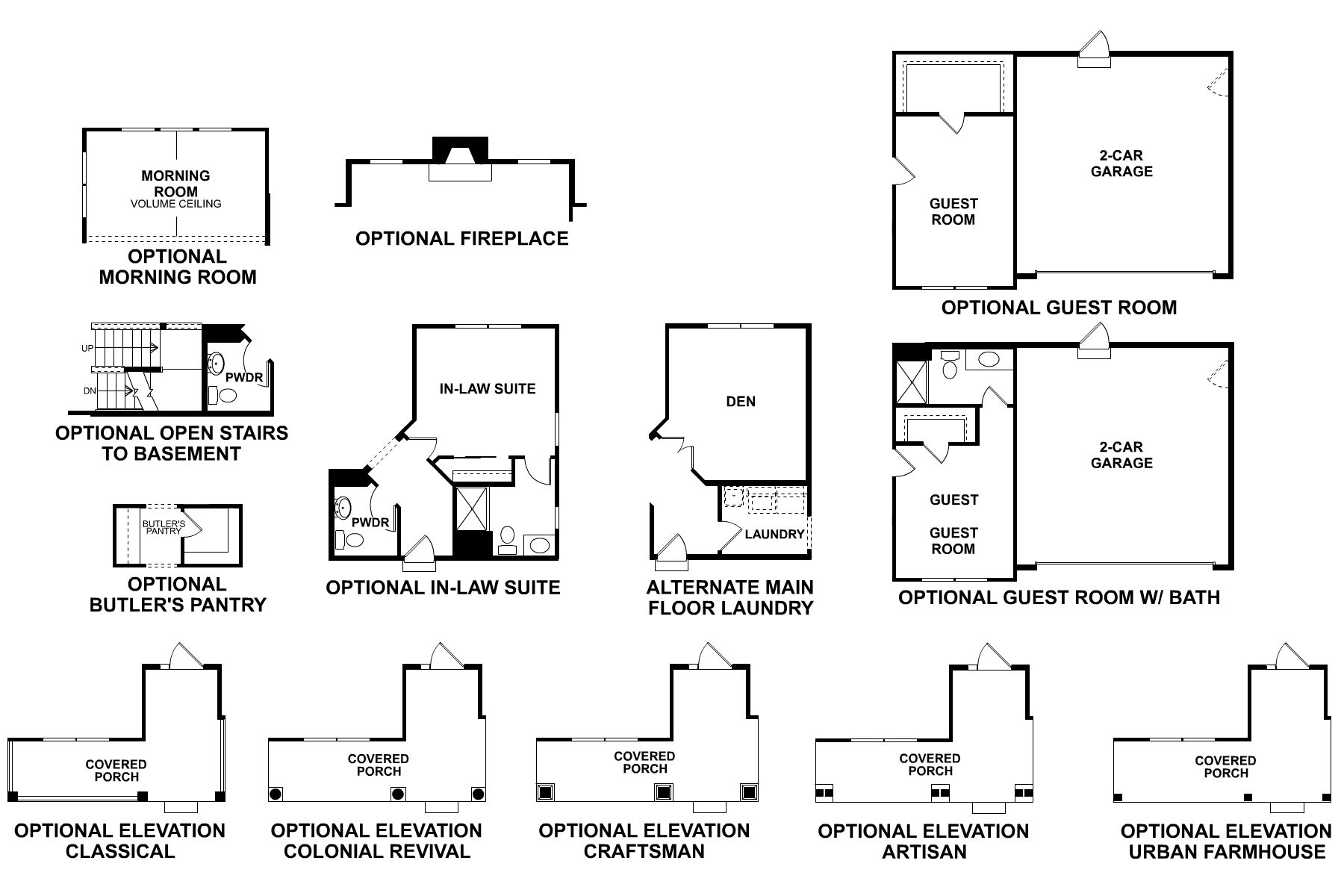
Hudson Elevation Artisan Hudson Floorplan Entryway Hudson Elevation Classical Kitchen Main Floor Lower Level Family Room Hudson Elevation Craftsman Family Room Hudson Elevation Colonial Revival Second Floor Main Floor Options Hudson Elevation Traditional Den Second Floor Option Laundry Room Hudson Elevation Urban Farmhouse Owners Bedroom Owners Bathroom Bedroom 2 Bathroom
Interested in this plan?

Contact us to learn more about Hudson and schedule a tour.

Contact Us

Available Homes Built on This Plan

11260 Saxony Street
11260 Saxony Street

$649,990

3,145 sqft

10825 Saxony Street
10825 Saxony Street

$734,370

3,145 sqft

11297 Kinney Way
11297 Kinney Way

$967,612

3,163 sqft

Home Finder Assistant
We're here to help!