AVAILABLE

Austin

Fieldstone, Huntley, IL

M/I Homes-Chicago

From $477,990

Square Feet

1,776 sq ft

Bedrooms

2

Bathrooms

2.0

Garage

2.00

Stories

2.0

Single-Story Floorplan Available in Huntley
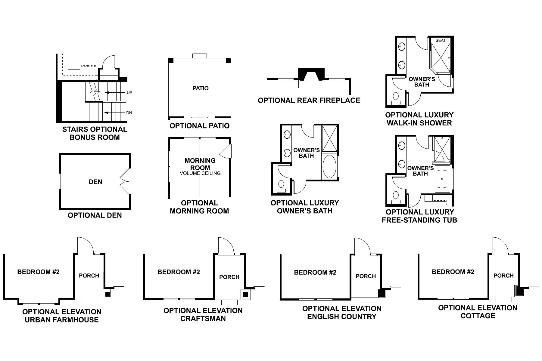
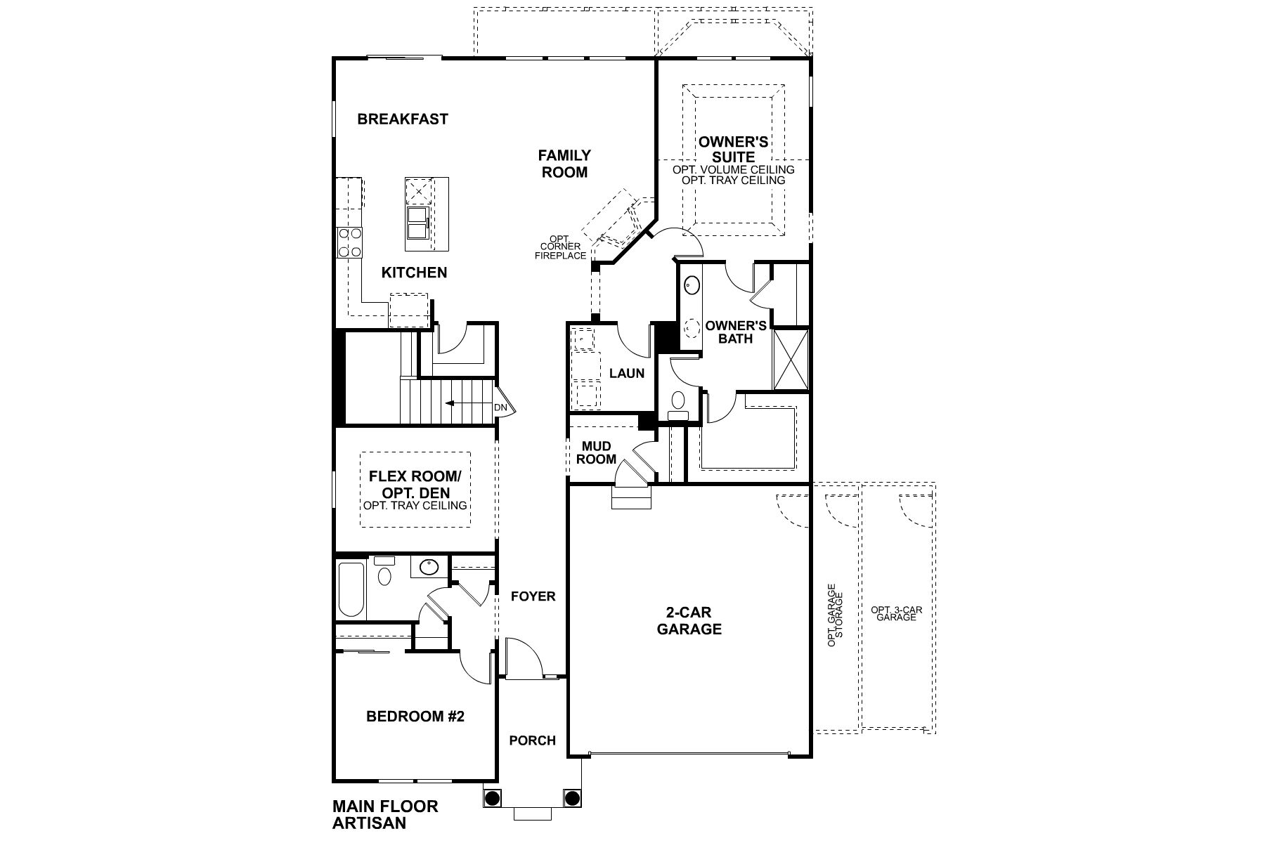
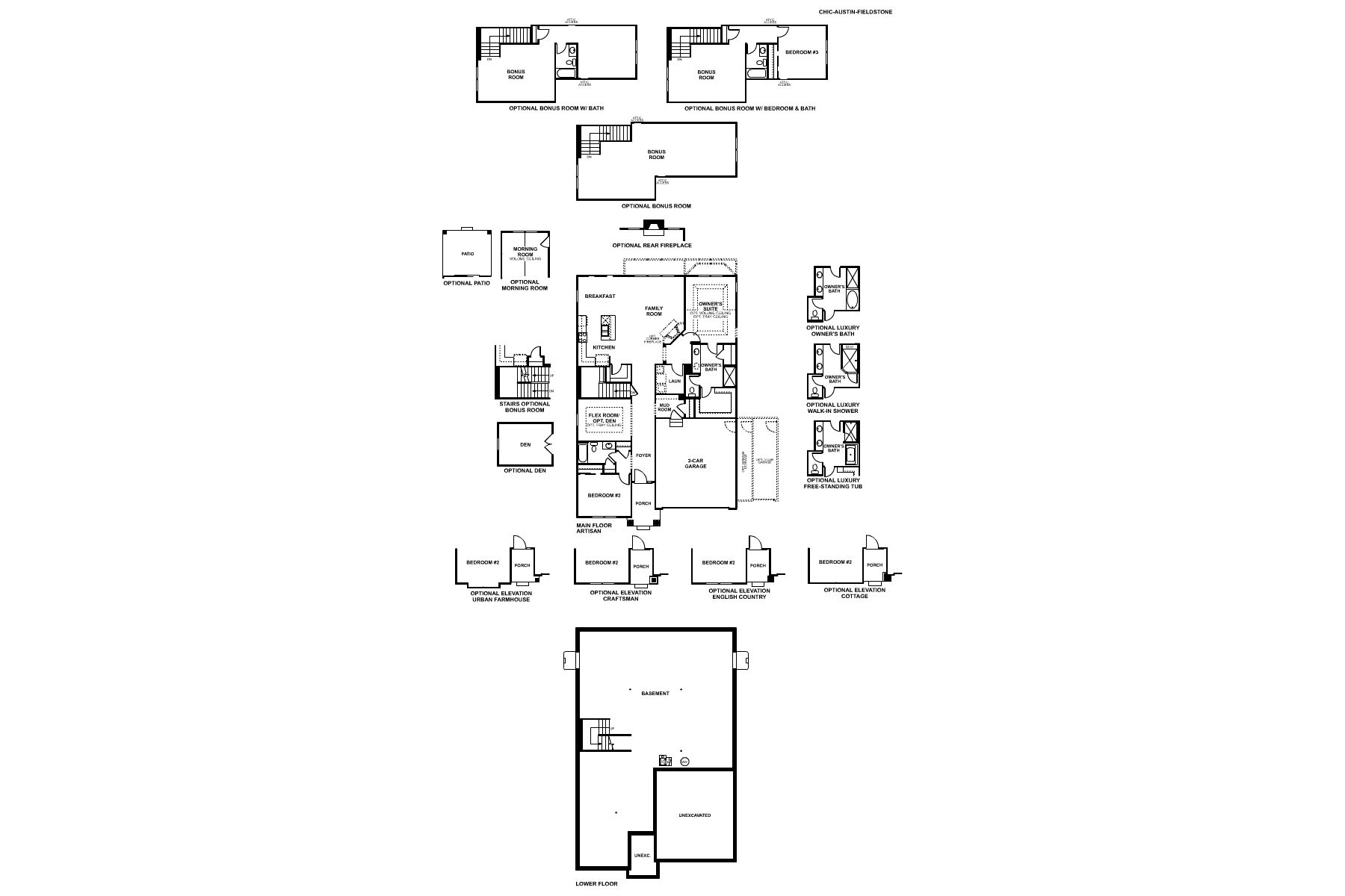
Welcome to the Austin, a stunning floorplan with a thoughtfully designed, open-concept layout featuring 2–3 bedrooms and 1,776–2,497 square feet.
Austin
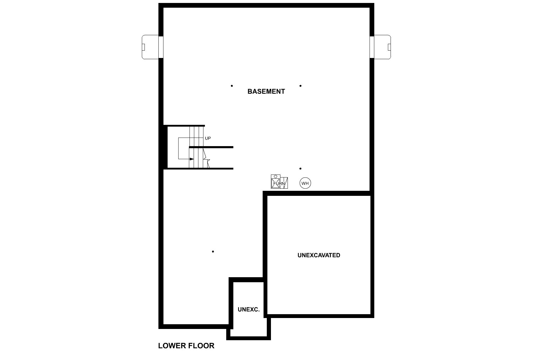
Austin Floorplan Austin Elevation Artisan Austin Elevation Craftsman Main Floor Austin Elevation Cottage Lower Level Austin Elevation English Country Main Floor Options Lower Level Options Austin Elevation UF Urban Farmhouse Interior Interior Interior Interior Interior Interior Interior Interior Interior Interior
Interested in this plan?

Contact us to learn more about Austin and schedule a tour.

Contact Us
Home Finder Assistant
We're here to help!