AVAILABLE

Lyndale

Piper Glen, Oswego, IL

M/I Homes-Chicago

From $610,990

Square Feet

3,342 sq ft

Bedrooms

4

Bathrooms

2.0

Garage

3.00

Stories

2.0

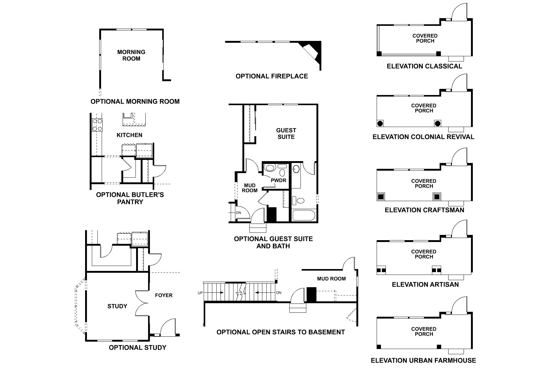
A Flexible 2-Story Floorplan With Over 3,300 Square Feet
An open-concept layout, flexible design options, and plenty of storage space await in the 2-story Lyndale floorplan in Oswego! This plan offers 4–6 bedrooms, 2.5–5.5 bathrooms, and over 3,300 square feet.
Lyndale
Lyndale Elevation Artisan Kitchen Lyndale Second Floor Options Lyndale Elevation Classical Lyndale First Floor Butler's Pantry Lyndale Elevation Craftsman Owner's Bedroom Lyndale Lower Level Lyndale Owner's Bathroom Lyndale Elevation Craftsman Lyndale First Floor Options Owner's Bathroom Lyndale Elevation Colonial Revival Lyndale Second Floor Lyndale Elevation Traditional Dining Room Lyndale Elevation Urban Farmhouse Family Room Bedroom Bathroom Bedroom
Interested in this plan?

Contact us to learn more about Lyndale and schedule a tour.

Contact Us
Home Finder Assistant
We're here to help!