AVAILABLE

Dunbar

Piper Glen, Oswego, IL

M/I Homes-Chicago

From $534,990

Square Feet

2,470 sq ft

Bedrooms

3

Bathrooms

2.0

Garage

2.00

Stories

2.0

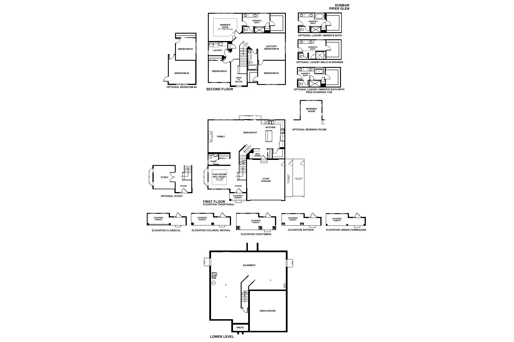
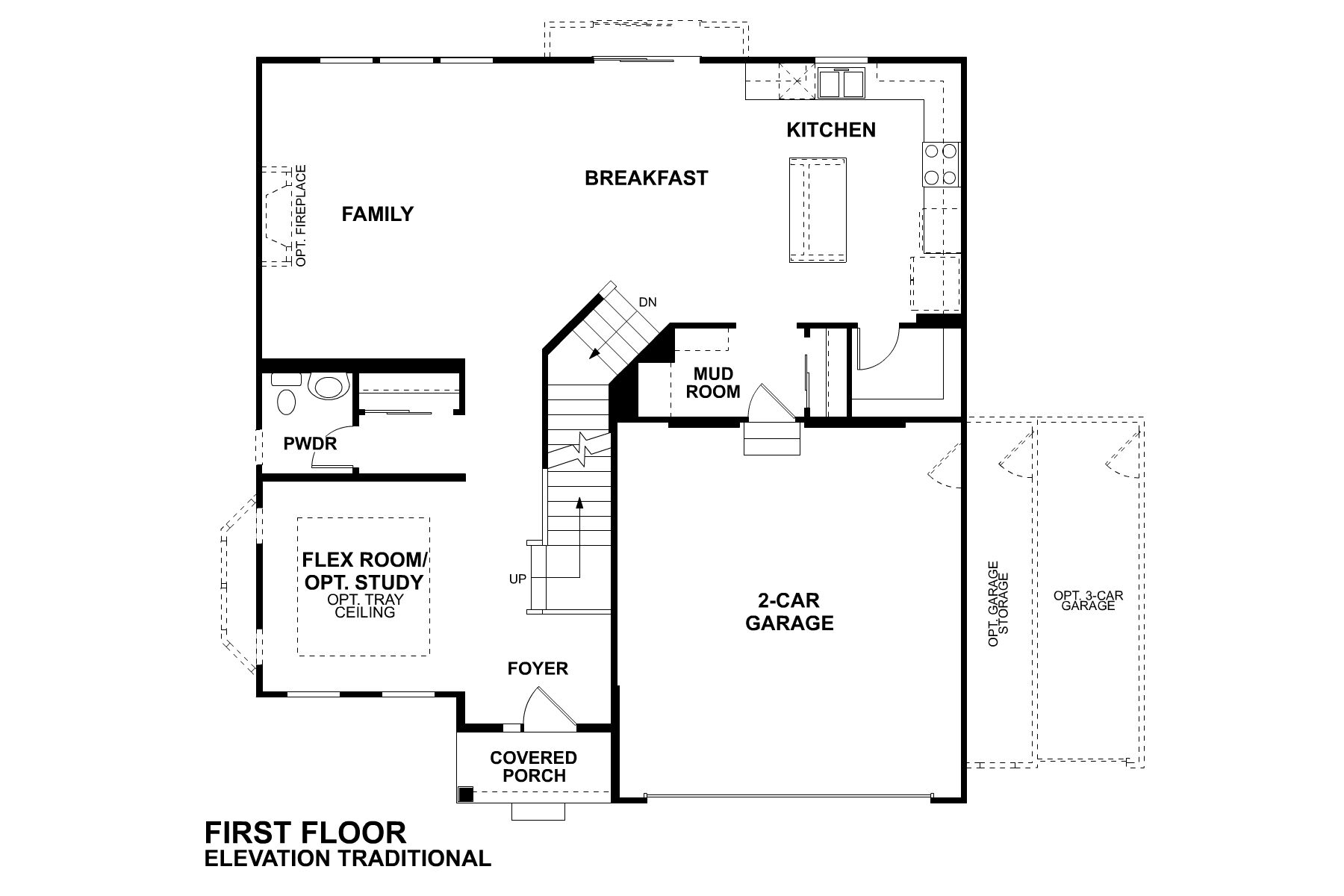
2,500 Square Foot Floorplan in Oswego
With 2,500 square feet, 3–4 bedrooms, 2.5 bathrooms, a basement, and a 2-car garage, the Dunbar floorplan available at Piper Glen has so much to offer!
Dunbar
Dunbar Elevation Artisan Dunbar Second Floor Kitchen Dunbar Elevation Classical Kitchen Dunbar Second Floor Options Dunbar Dining Area Dunbar Elevation Craftsman Family Room Dunbar Elevation Colonial Revival Dunbar First Floor Dunbar Lower Level Dunbar Elevation Traditional Morning Room Dunbar First Floor Options Owners Bedroom Dunbar Elevation Urban Farmhouse Owners Bathroom Loft Bedroom 3 Bedroom 2
Interested in this plan?

Contact us to learn more about Dunbar and schedule a tour.

Contact Us

Available Homes Built on This Plan

747 Fairfield Drive
747 Fairfield Drive

$529,990

2,484 sqft

Home Finder Assistant
We're here to help!