AVAILABLE

Tyler

Emerson Glen, Kannapolis, NC

M/I Homes-Charlotte

From $603,990

Square Feet

3,016 sq ft

Bedrooms

4

Bathrooms

3.0

Garage

2.00

Stories

2.0

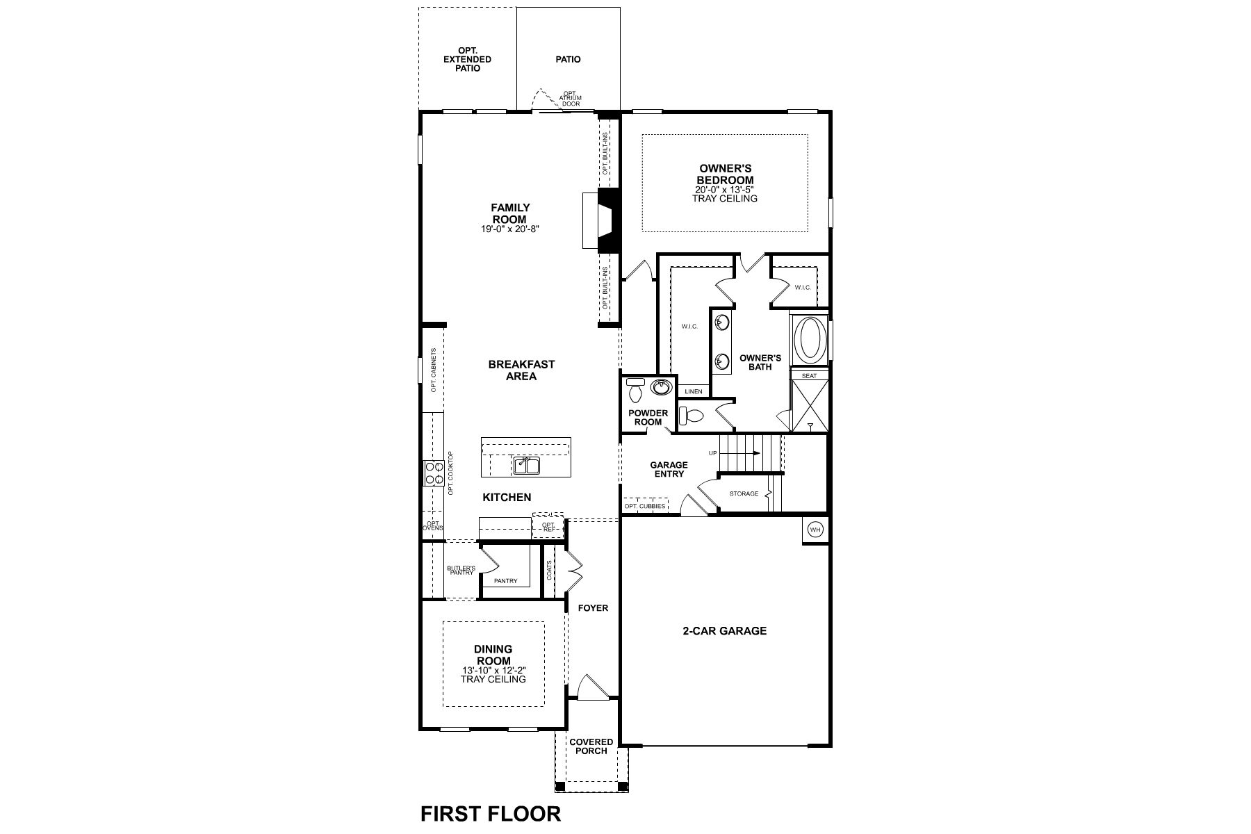
A Stunning 4-Bedroom Home
The Tyler floorplan is designed to help you make the most of every square foot. This thoughtfully planned two-story home features 4 bedrooms, 3.5 bathrooms, and a 2-car garage, offering both comfort and flexibility for modern living.
Tyler
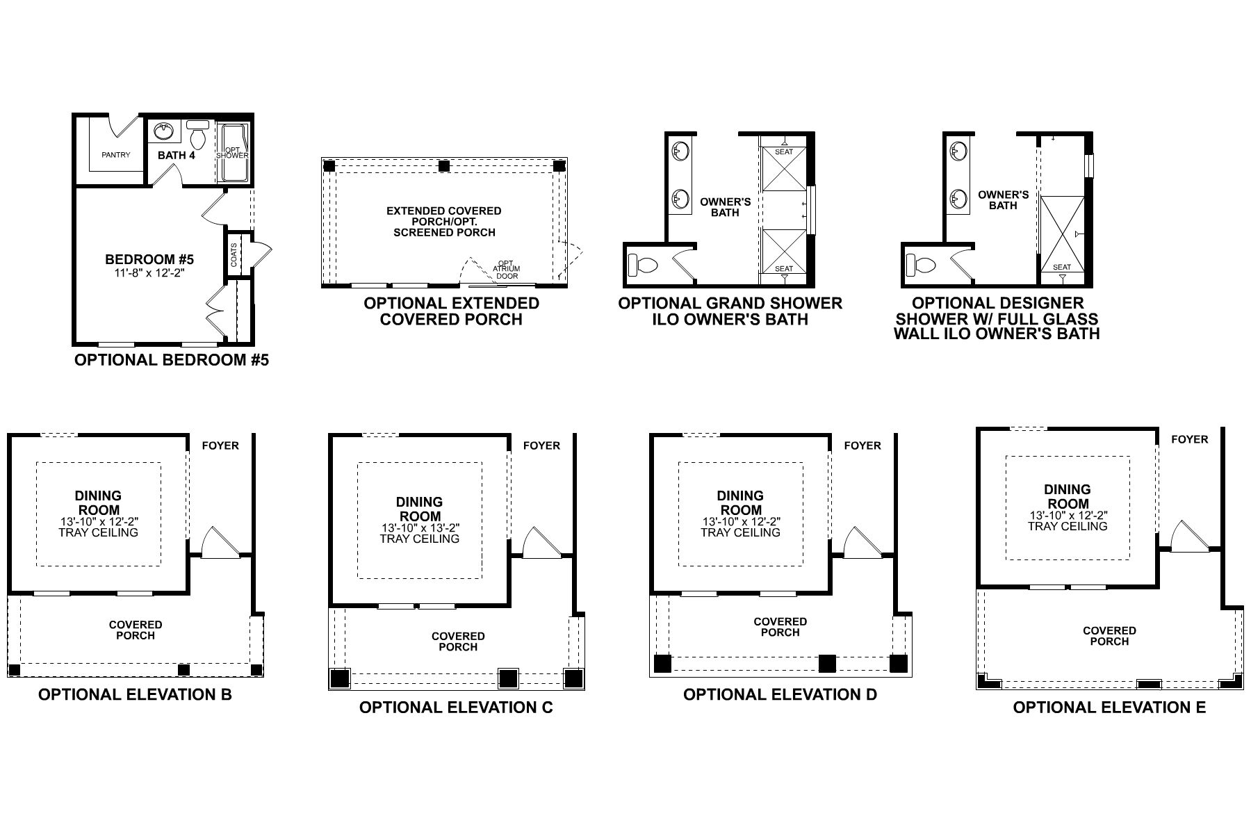
Tyler Floorplan Tyler Elevation C Tyler Elevation A Tyler Second Floor Tyler Elevation B Tyler First Floor Options Tyler Elevation D Tyler First Floor Tyler Second Floor Options Tyler Elevation E Interior Kitchen Kitchen Living Area Interior Interior Bedroom Bedroom Bathroom Bathroom
Interested in this plan?

Contact us to learn more about Tyler and schedule a tour.

Contact Us

Available Homes Built on This Plan

3000 Ballenger Street
3000 Ballenger Street

$669,990

3,016 sqft

Home Finder Assistant
We're here to help!