AVAILABLE NOW

2907 PARTHENON PLACE

Roman Forest, Roman Forest, TX

$409,990

Square Feet

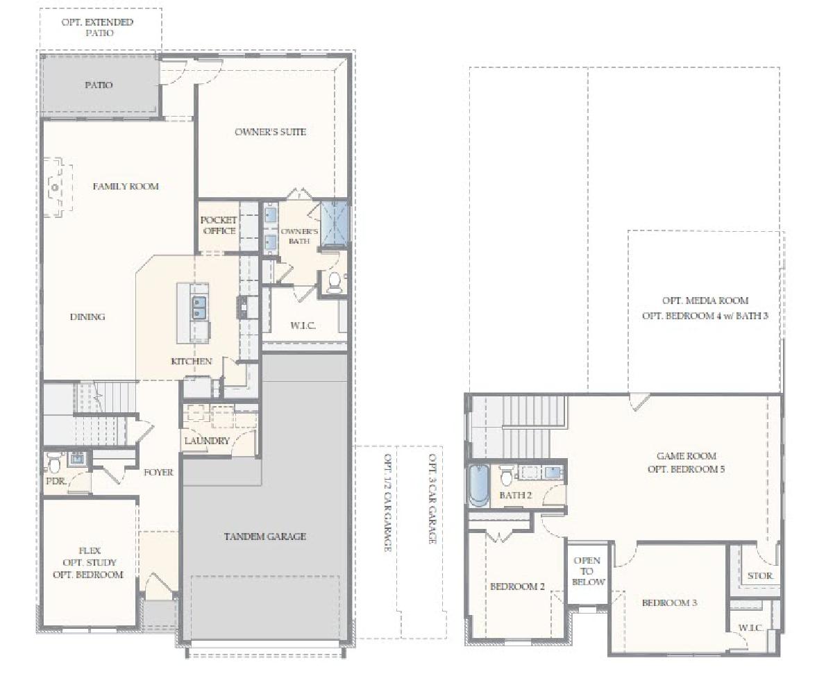
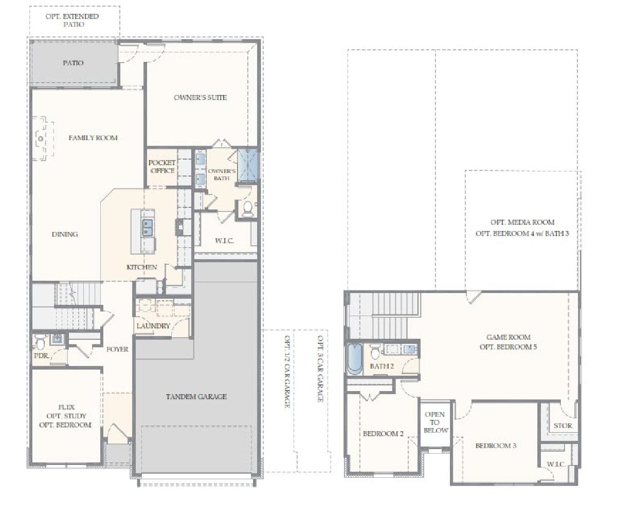
2,525 sq ft

Garage

3.5 Car

Stories

2

Plan Information

Plan Name: The Hawthorn

Photo Gallery

Ready to Make This Your Home?

Contact us today to schedule a showing and learn more about this property.

Schedule a Showing
Home Finder Assistant
We're here to help!