AVAILABLE NOW

21615 Edensor Lake Lane

Avalon at Cypress 60s, Cypress, TX

$739,398

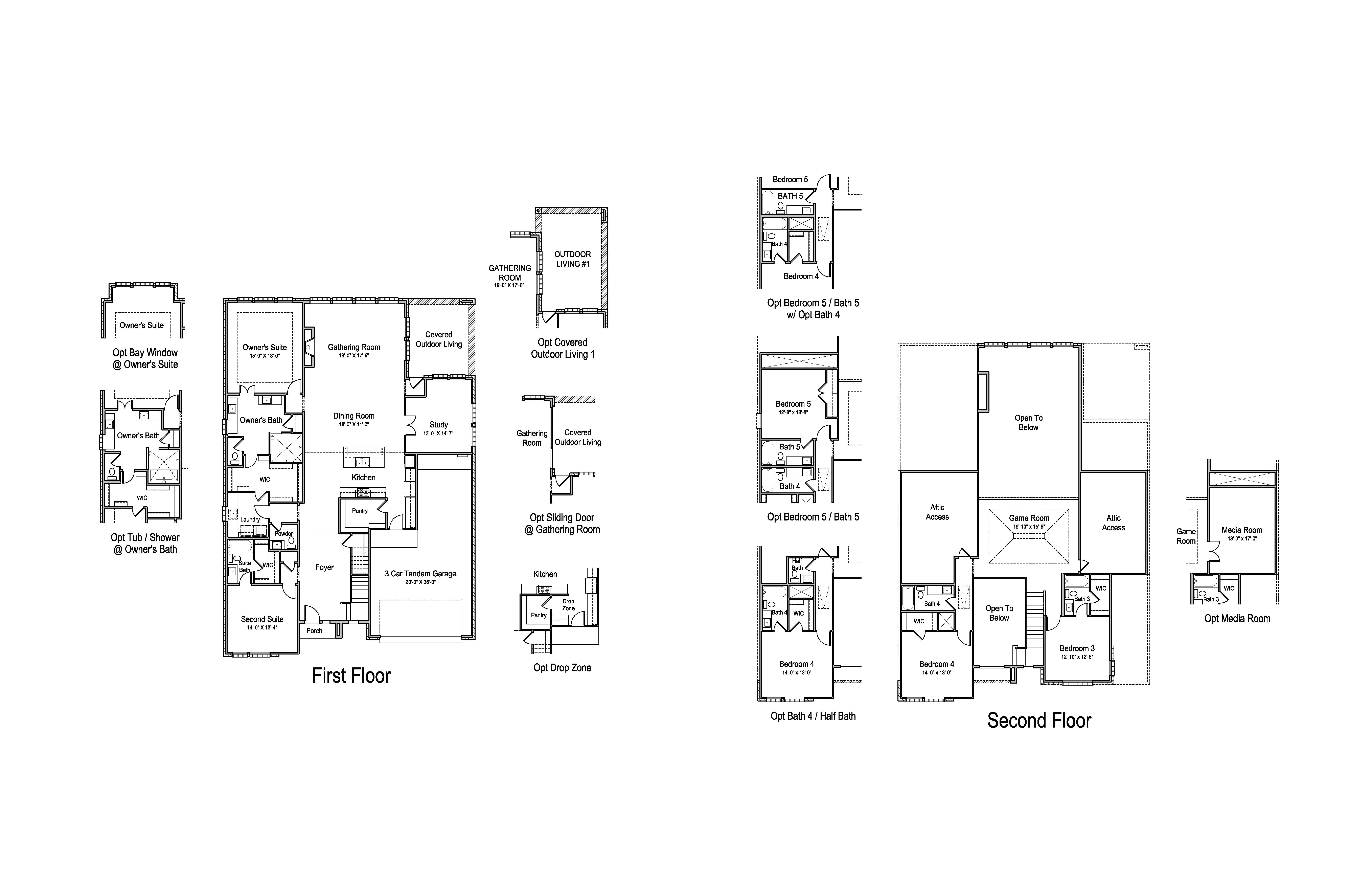
Square Feet

4,035 sq ft

Garage

3 Car

Stories

2

Plan Information

Plan Number: 12350592

Photo Gallery

Ready to Make This Your Home?

Contact us today to schedule a showing and learn more about this property.

Schedule a Showing
Home Finder Assistant
We're here to help!