AVAILABLE NOW

5704 Glynda Drive

Cambridge Manor, North Richland Hills, TX

$769,900

Square Feet

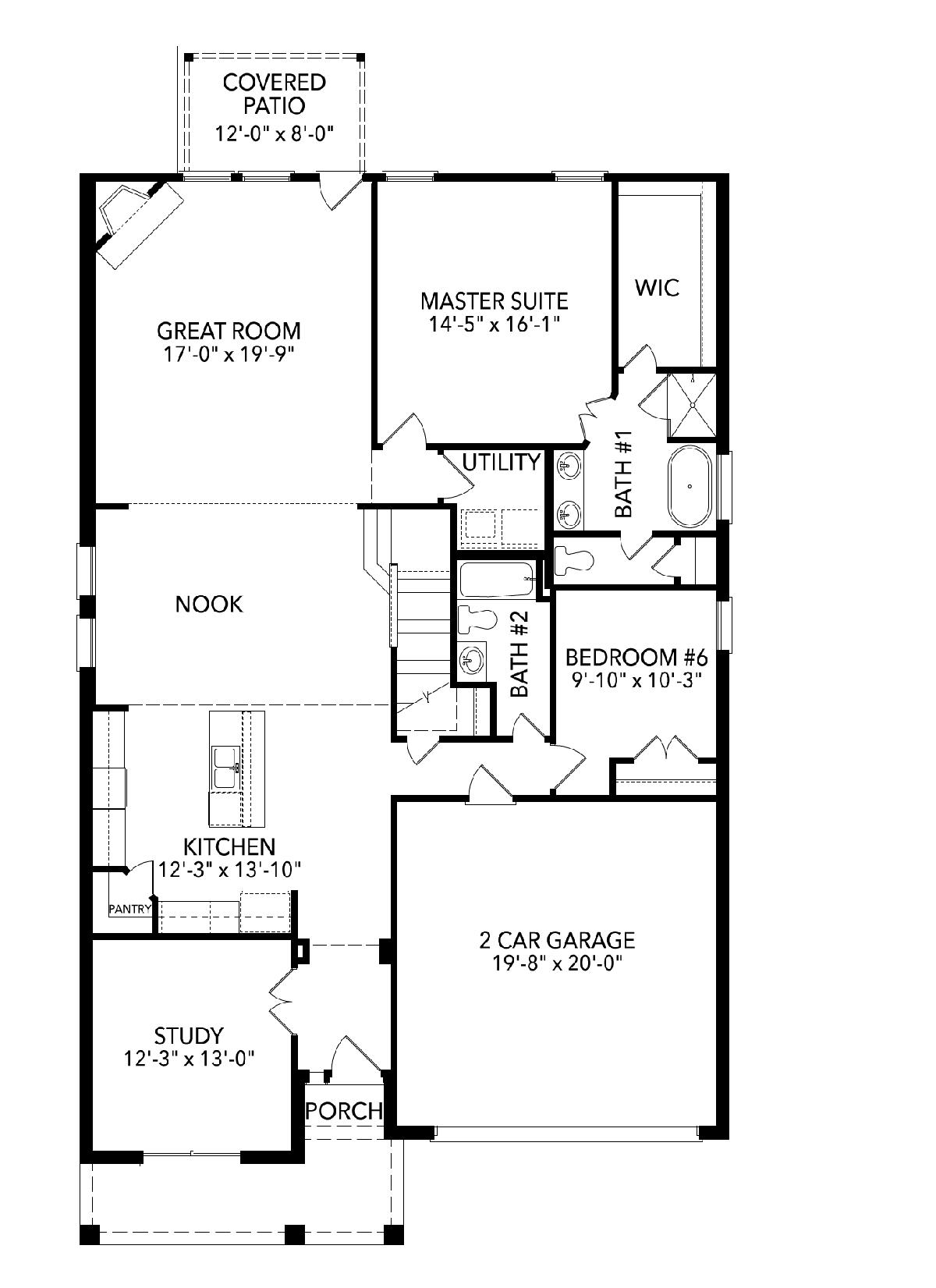
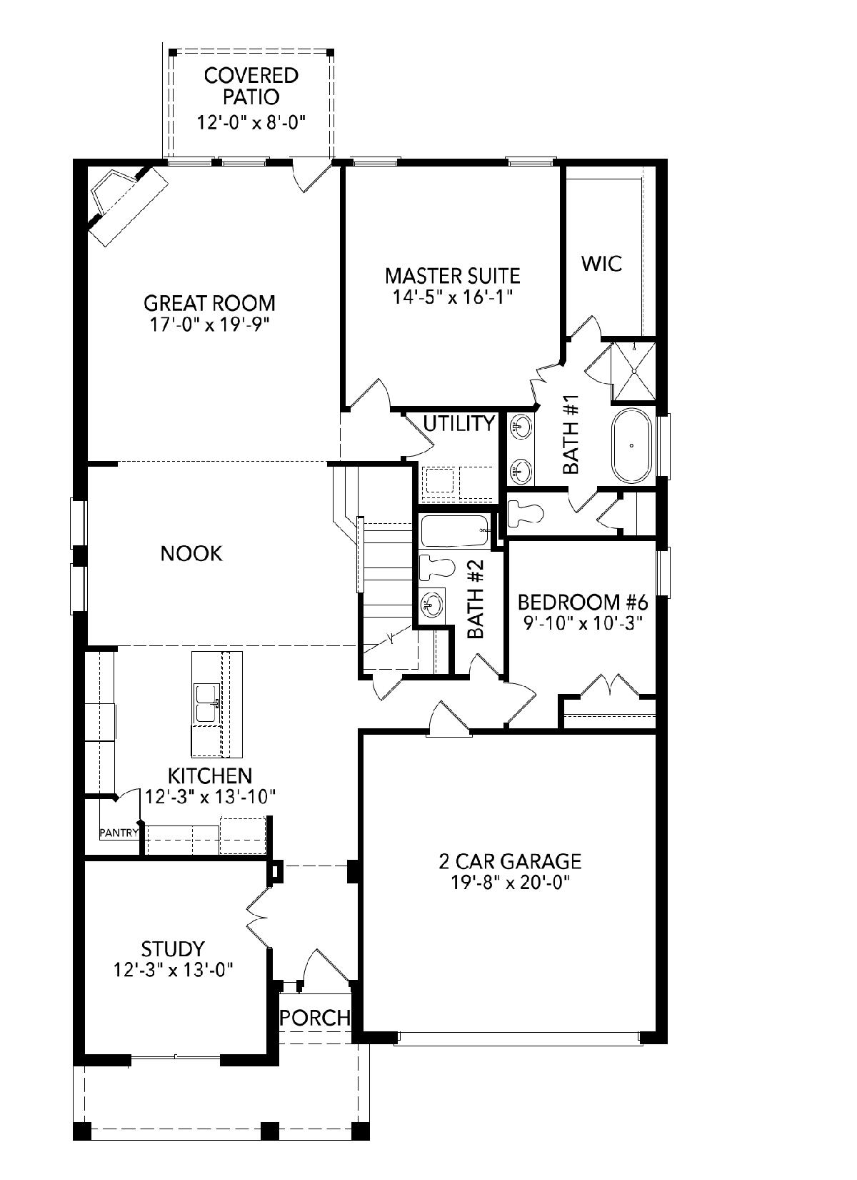
3,426 sq ft

Garage

2.0 Car

Stories

2.0

Plan Information

Plan Number: 26

Photo Gallery

Ready to Make This Your Home?

Contact us today to schedule a showing and learn more about this property.

Schedule a Showing
Home Finder Assistant
We're here to help!