AVAILABLE NOW

709 Clover Ln

Grand Estates of Anna, Anna, TX

$824,510

Square Feet

4,182 sq ft

Garage

2.0 Car

Stories

2.0

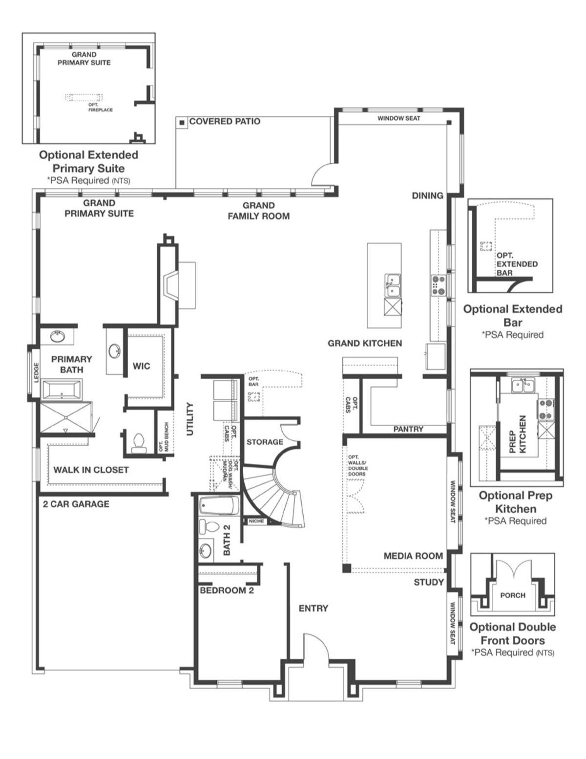
Plan Information

Plan Number: 627

Photo Gallery

Ready to Make This Your Home?

Contact us today to schedule a showing and learn more about this property.

Schedule a Showing
Home Finder Assistant
We're here to help!