AVAILABLE NOW

737 Auburn Avenue

Westside Preserve, Midlothian, TX

$671,215

Square Feet

3,730 sq ft

Garage

2 Car

Stories

2

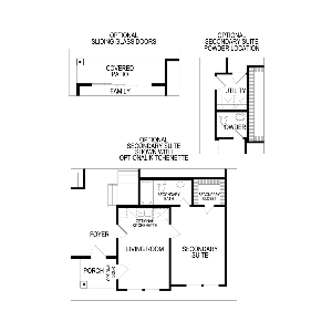
Plan Information

Plan Number: Oxford R (w/Media)

Photo Gallery

Ready to Make This Your Home?

Contact us today to schedule a showing and learn more about this property.

Schedule a Showing
Home Finder Assistant
We're here to help!