AVAILABLE NOW

12717 Cedar Ridge Trail

Trails at Cottonwood Creek, Rockwall, TX

$684,920

Square Feet

3,742 sq ft

Garage

2 Car

Stories

2

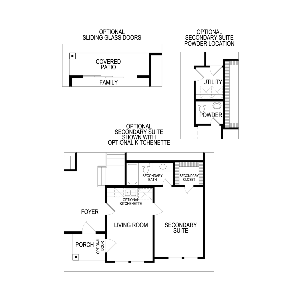
Plan Information

Plan Number: Oxford R (w/Media)

Photo Gallery

Ready to Make This Your Home?

Contact us today to schedule a showing and learn more about this property.

Schedule a Showing
Home Finder Assistant
We're here to help!