AVAILABLE NOW

1710 Seagrove Lane

Bear Creek, Cedar Hill, TX

$634,895

Square Feet

3,647 sq ft

Garage

2 Car

Stories

2

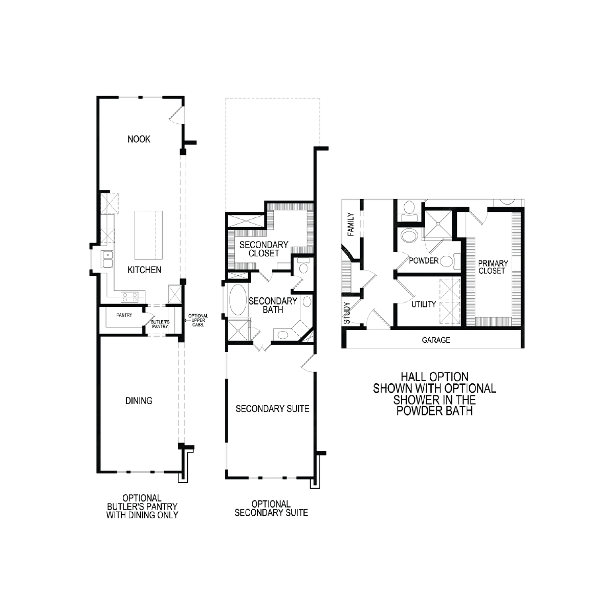
Plan Information

Plan Number: Stonehaven 2F

Photo Gallery

Ready to Make This Your Home?

Contact us today to schedule a showing and learn more about this property.

Schedule a Showing
Home Finder Assistant
We're here to help!