The Villas at Riverstone

12750 S. Kerry Lane, Plainfield, IL, 60585

Active
Price Range

$501,185 - $614,040

Square Feet

1,620 - 1,668 sq ft

Available Homes

2+

About This Community
Welcome to The Villas at Riverstone! This community of new villa homes coming to Plainfield, IL presents an exciting opportunity to live right along the DuPage River with proximity to all the amenities on I-59 just minutes away. Keep reading for more details about our ranch-style villa floorplans, the community layout, and the surrounding area of Plainfield! About Our New Construction Ranch Homes in Plainfield, ILIf you’re searching for a new home or townhome in the Plainfield area located in a quiet, association-maintained neighborhood, one of our villas at Riverstone may be the right place for rightsizing. Not only will you reap all the benefits of a personalized and modern new construction home, but you’ll also enjoy a low-maintenance lifestyle, giving you more time to spend doing what you love. Looking for single family homes? Explore Riverstone. What Is a Villa? A villa is a ranch-style home that's attached to another villa, and it's built on either a slab foundation or with a basement. Although these attached homes share a wall and have the same exterior design finishes for cohesion, each villa has its own private entrance, a garage, and a private back patio. Our 2 villa floorplans will come with a little over 1,600 square feet of living space. Explore the key features inside both: , Open-concept living space, where the kitchen, family room, and dining area all come together, making the ideal layout for entertaining , Spacious and bright owner’s suite with an en-suite bathroom and a walk-in closet , Additional bedroom with a closet and full en-suite bath , Covered back patio and a private backyardWe’ll also have several design and structural options to choose from, including a slab foundation or full basement, owner’s bathroom upgrades, an extended patio, and more. Community AmenitiesRiverfront Setting For nature enthusiasts, The Villas at Riverstone offers unparalleled access to the...
Contact Information

Phone:
630-360-9063

Email:
SalesChicago@mihomes.com

Hours:
Mon-Wed 10am-6pm; Thu 1pm-6pm; Fri-Sun 10am-6pm

Request Information Visit Website

Photo Gallery

The Villas at Riverstone
The Villas at Riverstone
The Villas at Riverstone
The Villas at Riverstone
The Villas at Riverstone
The Villas at Riverstone
The Villas at Riverstone
The Villas at Riverstone
The Villas at Riverstone
The Villas at Riverstone
The Villas at Riverstone
The Villas at Riverstone
The Villas at Riverstone
The Villas at Riverstone
The Villas at Riverstone
The Villas at Riverstone
The Villas at Riverstone
The Villas at Riverstone
The Villas at Riverstone
The Villas at Riverstone
The Villas at Riverstone
The Villas at Riverstone
The Villas at Riverstone

Available Plans

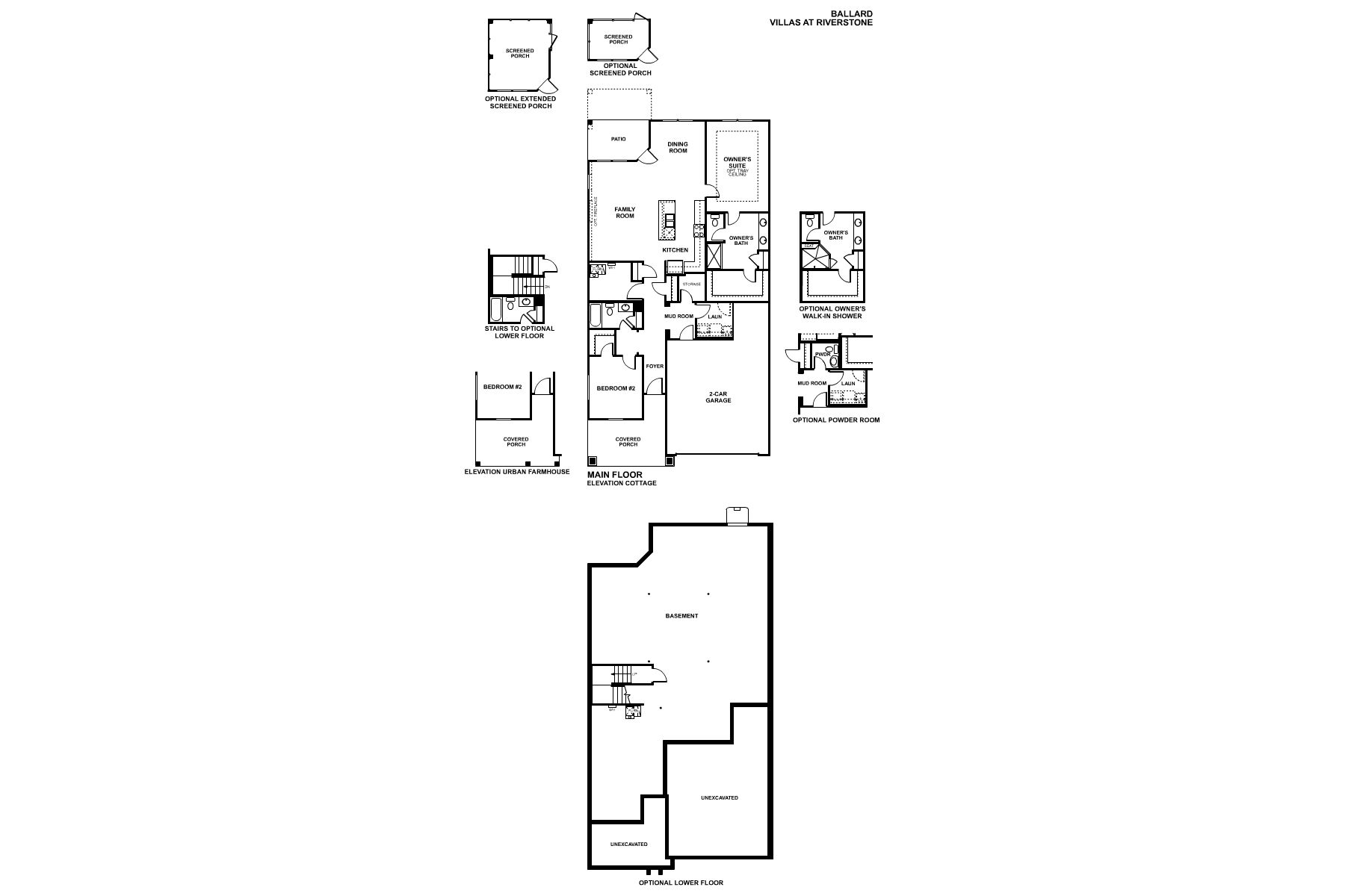
Ballard
Ballard

From $415,990

2 Bed 2.0 Bath 1,620 sqft

Spacious Single-Story Home Plan Available in Plainfield, IL

Colton
Colton

From $425,990

2 Bed 2.0 Bath 1,668 sqft

Thoughtfully Designed Ranch Home Plan Available in Plainfield, IL

Available Homes

23213 W Kennebec Drive
23213 W Kennebec Drive

$501,185

2.0 Bed | 2 Bath | 1,668 sqft | 1.0 Story | 2.0 Car Garage

23306 W Kennebec Drive
23306 W Kennebec Drive

$614,040

2.0 Bed | 2 Bath | 1,620 sqft | 1.0 Story | 2.0 Car Garage

Interested in The Villas at Riverstone?

Contact us today to schedule a tour and learn more about available homes.

Please provide your name.
Please provide your phone number.
Please provide a valid email.
Please select a city.
Please select an option.
Please select an option.
Please select a timeframe.
Let us know if you have any specific questions or requirements.
Home Finder Assistant
We're here to help!